ИНФОСАЙТ.ру
Госты, стандарты, нормативы. В библиотеке 60000 документов. Регулярное обновление. Круглосуточный бесплатный доступ!
БИБЛИОТЕКА ГОСТОВ, СТАНДАРТОВ И НОРМАТИВОВ

:: АЛГОТРЕЙДИНГ ::


АЛГОТРЕЙДИНГ
шаг за шагом


БЕСПЛАТНЫЕ УРОКИ по созданию торговых роботов на PYTHON с нуля, шаг за шагом.


Минимальные знания на PYTHON.
Библиотеки BackTrader и Pandas, сигналы с Pine Script из TradingView.
Связка с брокерами, телеграм.
Создание простых интерфейсов.

 

Все документы, представленные в каталоге, не являются их официальным изданием и предназначены исключительно для ознакомительных целей. Электронные копии этих документов могут распространяться без всяких ограничений. Вы можете размещать информацию с этого сайта на любом другом сайте.


Система нормативных документов в строительстве

СВОД ПРАВИЛ
ПО ПРОЕКТИРОВАНИЮ И СТРОИТЕЛЬСТВУ

ЖИЛАЯ СРЕДА
С ПЛАНИРОВОЧНЫМИ ЭЛЕМЕНТАМИ,
ДОСТУПНЫМИ ИНВАЛИДАМ

СП 35-102-2001

ГОСУДАРСТВЕННЫЙ КОМИТЕТ РОССИЙСКОЙ ФЕДЕРАЦИИ
ПО СТРОИТЕЛЬСТВУ И ЖИЛИЩНО-КОММУНАЛЬНОМУ КОМПЛЕКСУ
(ГОССТРОЙ РОССИИ)

Москва 2001

ПРЕДИСЛОВИЕ

1 РАЗРАБОТАН ГУП «Научно-проектный институт учебно-воспитательных, торгово-бытовых и досуговых зданий» (Институт общественных зданий) Госстроя России - ведущая организация, при участии ЗАО «Архитектурное проектно-исследовательское объединение - Центр» (АПИО - Центр)

2 ВНЕСЕН Министерством труда и социального развития Российской Федерации

3 ПРЕДСТАВЛЕН Управлением архитектуры и проектных работ, Управлением стандартизации, технического нормирования и сертификации Госстроя России

4 УТВЕРЖДЕН приказом директора ГУП «Научно-проектный институт учебно-воспитательных, торгово-бытовых и досуговых зданий» (Институт общественных зданий) от 20 июня 2001 г. № 5 б

5 ОДОБРЕН и РЕКОМЕНДОВАН к применению в качестве нормативного документа Системы нормативных документов в строительстве постановлением Госстроя России от 16 июля 2001 г. № 71

6 ВВЕДЕН впервые

СОДЕРЖАНИЕ

ВВЕДЕНИЕ

Свод правил СП 35-102-2001 «Жилая среда с планировочными элементами, доступными инвалидам» разработан по заказу Министерства труда и социального развития Российской Федерации в рамках федеральной целевой программы «Социальная поддержка инвалидов на 2000 - 2005 годы» в соответствии с контрактом № 5.1.1/227 юр-98 от 25 июня 1999 г.

Нормативной базой, регламентирующей мероприятия по адаптации существующей среды жизнедеятельности в соответствии с учетом потребностей инвалидов и других маломобильных групп населения, должен, после его завершения, стать 35-й комплекс отраслевых нормативных документов в области проектирования и строительства. Основным документом федерального уровня для данного комплекса является СНиП 35-01-2001 «Доступность зданий и сооружений для маломобильных групп населения». Помимо данного СНиП, в состав базового блока нормативных документов нового поколения по 35-му комплексу входят:

СП 35-101-2001 «Проектирование зданий и сооружений с учетом доступности для маломобильных групп населения. Общие положения»,

СП 35-102-2001 «Жилая среда с планировочными элементами, доступными инвалидам»,

СП 35-103-2001 «Общественные здания и сооружения, доступные маломобильным посетителям»,

СП 35-104-2001 «Здания и помещения с местами труда для инвалидов».

Разработанный в развитие положений СНиП 35-01-2001 Свод правил СП 35-102-2001 подготовлен в соответствии с требованиями СНиП 10-01-94 «Система нормативных документов в строительстве. Основные положения» и содержит рекомендательные нормы и правила по проектированию жилой среды, адаптированной для инвалидов и других маломобильных групп населения.

В СП 35-102-2001 учтены опыт исследований в данной области отечественных и зарубежных специалистов, а также разработки различных авторов и творческих коллективов.

Работа выполнена авторским коллективом в следующем составе: научный руководитель и научный редактор - канд. архитектуры A.M. Гарнец, ответственный исполнитель - канд. архитектуры С.В. Кролевец, при участии: канд. архитектуры Б.П. Анисимова, арх. К.В. Карпача и инж. Л.В. Сигачевой.

Внесен - Департаментом по вопросам реабилитации и социальной интеграции инвалидов Минтруда России (И.В. Лебедев, А.Е. Лысенко).

Представлен к утверждению - Управлением стандартизации, технического нормирования и сертификации Госстроя России (В.В. Тишенко, Н.Н. Поляков, Л.А. Викторова) и Управлением архитектуры и проектных работ Госстроя России (Э.А. Шевченко, В. Г. Хахулин, Н.Н. Якимова).

Согласован - Государственной противопожарной службой МВД России, Госсанэпиднадзором Минздрава России, Главгосэкспертизой России, Всероссийским обществом инвалидов, Всероссийским обществом слепых и Всероссийским обществом глухих.

В тексте учтены предложения и замечания специалистов Госстроя России, Центральных правлений ВОИ, ВОС и ВОГ, НИИ экологии человека и гигиены окружающей среды им. А.Н. Сысина.

При подготовке СП 35-102-2001 использованы материалы НИР Ивановгражданпроект, СибЗНИИЭП, ЦНИИЭП жилища; нормативные, обзорные и рекомендательные документы, разработки прошлых лет, данные зарубежных источников, «Рекомендации по проектированию окружающей среды, зданий и сооружений с учетом потребностей инвалидов и других маломобильных групп населения» (Выпуск 3) и другие материалы.

СВОД ПРАВИЛ ПО ПРОЕКТИРОВАНИЮ И СТРОИТЕЛЬСТВУ

ЖИЛАЯ СРЕДА С ПЛАНИРОВОЧНЫМИ ЭЛЕМЕНТАМИ,
ДОСТУПНЫМИ ИНВАЛИДАМ

RESIDENTIAL ENVIRONMENT WITH PLANNING COMPONENTS,
ACCESSIBLE FOR PHYSICALLY HANDICAPPED PERSONS

1 ОБЩИЕ ПОЛОЖЕНИЯ

1.1 Рекомендации и указания настоящего Свода правил (далее - СП) направлены на обеспечение потребностей инвалидов при проектировании неспециализированных жилых домов, включая одноквартирные (в том числе коттеджи и усадебные) и блокированные, общежитий, а также обеспечение потребностей маломобильных групп населения (далее - МГН) в жилой группе помещений общественных зданий (спальные корпуса, жилая часть гостиниц, квартиры, встроенные в общественные здания, например, - в школы и др.).

1.2 Положения СП не распространяются на проектирование специализированных жилых зданий и комплексов (специальные социальные жилые дома, дома-интернаты для инвалидов и престарелых, пансионаты для глухонемых, специализированные общежития для инвалидов, психоневрологические интернаты, специализированные детские дома для детей-инвалидов, центры реабилитации и др., аналогичные по функции, виду обслуживания и контингентам учреждения, предприятия и их здания), а также на проектирование медицинских учреждений, включая санаторные.

1.3 Здания и группы жилых помещений, не охваченные указаниями СП, рекомендуется проектировать по специальным нормативным документам, а в случае их отсутствия, - по заданиям на проектирование, утверждаемым в установленном порядке с учетом указаний РДС 35-201 и мнения местных органов социальной защиты населения, ВОС, ВОГ и ВОИ.

1.4 Положения разделов 4 и 5 данного СП, как связанные с особыми объемно-планировочными решениями, преимущественно относятся к инвалидам с поражениями опорно-двигательного аппарата, что должно учитываться при специализации жилья для лиц с недостатками зрения. Обязательность полного либо частичного применения рекомендаций и указаний настоящего СП определяется заказчиком.

Настоящий документ применяется при проектировании жилищ в зданиях всех форм собственности, а также жилой части гостиниц и категорированных рекреационных учреждений разряда три звезды и выше (ГОСТ Р 50645).

2 НОРМАТИВНЫЕ ССЫЛКИ

В тексте СП сделаны ссылки на следующие нормативные и рекомендательные документы:

СНиП 10-01-94 «Система нормативных документов в строительстве. Основные положения»;

СНиП 11-01-95 «Инструкция о порядке разработки, согласования, утверждения и составе проектной документации на строительство предприятий, зданий и сооружений»;

СНиП 23-05-98 «Естественное и искусственное освещение»;

СНиП 35-01-2001 «Доступность зданий и сооружений для маломобильных групп населения»;

СНиП 2.07.01-89* «Градостроительство. Планировка и застройка городских и сельских поселений»;

СНиП 2.08.01-89* «Жилые здания»;

СНиП 2.08.02-89* «Общественные здания и сооружения»;

СП 31-102-99 «Требования доступности общественных зданий и сооружений для инвалидов и других маломобильных посетителей»;

ГОСТ Р 50645-94 «Туристско-экскурсионное обслуживание. Классификация гостиниц»;

Санитарные нормы и правила обеспечения инсоляцией жилых и общественных зданий и территорий жилой застройки. № 2605-82;

Рекомендации по проектированию окружающей среды, зданий и сооружений с учетом потребностей инвалидов и других маломобильных групп населения (далее - Рекомендации), выпуск 1 «Общие положения», выпуск 2 «Градостроительные требования», выпуск 3 «Жилые здания»;

РДС 35-201-99 «Порядок реализации требований доступности для инвалидов к объектам социальной инфраструктуры».

3 РАЗМЕЩЕНИЕ И ТРЕБОВАНИЯ К УЧАСТКУ

3.1 Указания и рекомендации СП ограничиваются придомовой территорией, участком, территорией (рекреационного, гостиничного или другого учреждения, имеющего жилую группу помещений).

3.2 Территорию у жилых зданий, в которых предусматривается проживание инвалидов, рекомендуется огораживать декоративными оградами, зелеными изгородями; в необходимых случаях территория может быть охраняемой. Устройство оград и зеленых изгородей должно соответствовать указаниям 3.2 СНиП 35-01.

3.3 Жилые здания и жилую группу помещений общественных зданий, имеющую жилые ячейки, квартиры или помещения для проживания инвалидов, рекомендуется размещать (если такие помещения не предусматриваются в составе комплексного обслуживания) вблизи обслуживающих их медицинских учреждений.

3.4 Жилые комнаты и кухни квартир, предназначенные для проживания МГН, должны быть обеспечены инсоляцией и естественным освещением согласно указаниям СНиП 23-05, СНиП 2.08.01, а также Санитарных норм и правил обеспечения инсоляцией жилых и общественных зданий и территорий жилой застройки (№ 2605-82). Условия инсоляции и естественного освещения квартир и жилых помещений постоянного проживания, предназначенных для инвалидов и других категорий МГН, должны находиться в пределах нормативных значений без применения минимальных допусков.

3.5 Освещение жилых комнат вторым светом, в том числе и через остекленные лоджии и балконы, не допускается. При этом также не допускается (кроме случаев необходимой защиты от солнечного перегрева) применение озеленения, затеняющего жилые помещения квартир.

3.6 При проектировании ориентация окон жилых комнат и помещений отдыха (гостиные, комнаты дневного пребывания и т.п.) должна приниматься: при строительстве южнее 55° северной широты - Ю, ЮВ, В; севернее 55° северной широты - Ю, ЮВ, ЮЗ.

В III климатическом районе окна жилых помещений, предназначенных для проживания инвалидов и МГН в зоне 200-290°, должны быть оборудованы солнцезащитными устройствами (при высоте их расположения до 3-го этажа включительно солнцезащиту допускается выполнять средствами озеленения). На неблагоприятные стороны горизонта (310-50° в I, II и III климатических районах, а также 200-290° в III климатическом районе) допускается ориентировать не более 20 % жилых помещений и (или) помещений дневного пребывания.

3.7 В I и II климатических районах с господствующими северными ветрами следует не допускать ориентацию жилых помещений МГН на часть горизонта от 290 до 70°.

3.8 При строительстве жилых зданий с квартирами, жилыми ячейками или отдельными помещениями, адаптированными к потребностям инвалидов и МГН, на ограниченной территории площадки и зоны, предназначенные для МГН, рекомендуется выделять в первую очередь. В таких случаях возможно применение универсальных площадок и зон, допускающих их эксплуатацию всеми категориями граждан.

3.9 На придомовой территории зданий, имеющих помещения для инвалидов, следует предусматривать доступность (по габаритам, уклонам и оборудованию) следующих площадок и зон: площадок перед главным (или выделенным для инвалидов) входом; специализированных автостоянок для личного автотранспорта инвалидов; мест кратковременной стоянки автотранспорта (вблизи зоны входа); специализированных автостоянок; площадок мусоросборников; детских площадок; площадок для выгула собак, в том числе собак-поводырей; площадок и зон тихого отдыха; площадок для сушки белья (при отсутствии в доме специальных помещений), для выбивания ковров и чистки пылесосов (в пределах придомовой территории).

3.10 На придомовом участке (приквартирном, усадебном участке, участке при коттедже и т.п.) должно быть обеспечено движение от входов на территорию к входу в дом, а также к необходимым (см. п. 3.9) площадкам, к надворным постройкам (кроме используемых обслуживающим персоналом); сооружениям и зонам хозяйственного назначения на участке (последнее - по заданию на проектирование).

3.11 На участках общественных зданий, имеющих в своем составе жилые помещения, предназначенные для расселения МГН, следует обеспечивать доступность административно-приемных, учебных корпусов, клубов, предприятий питания и других общественно значимых зон и площадок, а также зоны главного входа на территорию, к жилым (спальным) корпусам при павильонной (рассредоточенной) композиции плана комплекса либо к жилым блокам (при блочной композиции комплекса). К входным зонам рекомендуется предусматривать подъезд пассажирского (легкового, микроавтобусов) автотранспорта.

3.12 Доступность перечисленных выше зон, площадок, зданий, корпусов следует предусматривать по дорожной (тропиночной) сети с твердым или улучшенным покрытием, обеспечивающим возможность использования кресел-колясок, каталок и т.п. Ширину дорожек для движения инвалидов на креслах-колясках, с нарушениями зрения и слуха, их маркировку и дополнительное оборудование полос движения на участках общественных зданий следует принимать согласно указаниям СНиП 35-01.

Уклоны на путях движения на придомовой территории, приусадебном участке, территории общественного здания должны быть, как правило, не круче 1:12 (допускаются короткие, 5-10 м, участки с уклоном 1:10). Поперечный уклон (профиль) в зонах поворотов и разворотов - не более 1:20. Через каждые 50 м пути движения по уклону следует предусматривать горизонтальные площадки (с уклонами, обеспечивающими водосток) для отдыха, ограниченные от непроезжей части поребриками высотой не менее 0,1 м или оградой.

3.13 На придомовой территории, участке, имеющих значительный рельеф, следует обеспечивать указанные в п. 3.12 уклоны пандусов на участках движения: от входа до ворот (калитки), до кратковременной автостоянки; до хотя бы одной из зон (площадок) отдыха. Желательно обеспечивать возможность обхода (объезда на кресле-коляске) дома (здания, блока).

3.14 Расстояние от специализированной автостоянки (гаража-стоянки), обслуживающей инвалидов, должно быть не более 200 м до наиболее удаленного входа, но не менее 15 м до близлежащего дома.

3.15 Площадки для отдыха на придомовой территории должны быть оборудованы скамьями и навесами, благоустроены озеленением и цветниками. Рекомендуется также предусматривать здесь перголы, беседки, другие малые архитектурные формы, столы для тихих игр. Разрыв между зонами отдыха и мусоросборниками, площадками выбивания ковров, спортивными площадками должен быть не менее 30 м.

3.16 Пешеходные подходы на территории общественных зданий в зоне жилых помещений для инвалидов следует, как правило, проектировать без пересечения с транспортными проездами.

Проезды и пешеходные трассы (включая прогулочные дорожки) должны иметь твердое покрытие; проектировать покрытия из песка или гравия не допускается. Покрытие пешеходных трасс должно быть нескользким (кирпич-клинкер, бетонные плиты, природный камень под бучарду и т.д.).

3.17 На придомовых и приквартирных участках пути движения инвалидов на кресле-коляске возможно проектировать односторонними (0,9 м), но обеспеченными площадками для разворота.

3.18 Размеры открытых автостоянок для автомобилей инвалидов (без учета площади проездов) составляют на одну автомашину 3,5 ´ 5,0 м, не менее; крытого бокса соответственно - 3,5 ´ 6,0 м. Рекомендуется с учетом соответствующей изоляции проектировать под жилыми этажами встроенные гаражи-стоянки. Для открытых или гаражных автостоянок инвалидов следует резервировать специальные зоны на придомовой территории.

3.19 На территориях (участках), подверженных шумовому воздействию близлежащего производства или транспортных коммуникаций, следует осуществлять мероприятия по шумозащите зон отдыха МГН от источников прямого и отраженного шума с применением экранов или защитного озеленения. Плотность озеленения не должна препятствовать проникновению солнечных лучей, но должна обеспечивать защиту от гиперинсоляции.

3.20 Плотность застройки территорий и специальных участков (зон территории) зданиями, имеющими жилища для инвалидов, рекомендуется принимать не более 25 %, причем озеленение, как правило, должно составлять порядка 60 % площади участка.

4 ЖИЛЫЕ ЗДАНИЯ

4.1. Количество квартир для инвалидов и их расположение в объеме здания следует устанавливать заданием на проектирование. При этом необходимо учитывать категории инвалидов, требующие различной адаптации жилой среды к своим потребностям. Особое внимание при проектировании рекомендуется (поскольку они требуют особых объемно-планировочных решений) обращать на инвалидов с повреждениями опорно-двигательного аппарата, в том числе - пользующихся креслами-колясками.

4.2. При проектировании жилых зданий и помещений учет потребностей инвалидов в соответствии с указаниями СНиП 35-01 рекомендуется производить в зависимости от вида объекта и конкретных условий, в универсальной либо в специализированной форме, а также - в сокращенном или в доступно полном объеме.

4.3. Универсальной адаптации подлежат придомовые коммуникации и площадки, помещения от входа в здание до зоны проживания инвалида (квартира, жилая ячейка, комната) в многоквартирных домах и общежитиях, в жилой части (группе помещений) общественных зданий.

При универсальной форме габаритные схемы рассчитываются на движение инвалида на кресле-коляске, а по оборудованию - также и на слабовидящих, незрячих и глухих.

При проектировании зданий, имеющих жилые помещения для инвалидов, передвигающихся на креслах-колясках, им должны быть обеспечены: доступность (с использованием пандусов, лифтов или подъемников) этажа проживания; необходимые габариты внутридомовых и внутриквартирных коммуникаций; наличие пространств в санитарном узле, кухне, жилой комнате, передней, обеспечивающих маневрирование на кресле-коляске.

Для массового жилищного строительства, а также для условий реконструкции, как минимум, достаточно обеспечить доступность движения (в том числе и с сопровождающим) инвалида на кресле-коляске от входа в здание до этажа проживания (квартиры, жилой ячейки), причем рекомендуется применять, помимо пандусов, также их заменители (например, - колейные аппарели), в том числе и с увеличенными уклонами, по которым передвижение будет осуществляться с посторонней помощью.

4.4. При учете потребностей инвалидов в специализированной форме проживания адаптацию элементов зданий и их помещений рекомендуется производить по индивидуальной программе с учетом задач, конкретизируемых заданием на проектирование. В подобных случаях учет потребностей может быть различен в различных жилых зданиях и помещениях применительно к разнообразным расселяемым контингентам, к состоянию их здоровья и виду недуга. Свободная планировка квартир не рекомендуется.

4.5. В жилых домах общего типа набор адаптивных мероприятий для обеспечения проживания инвалидов следует определять заданием на проектирование с учетом принимаемого комфорта проживания. При этом адаптивные мероприятия необходимо обеспечивать для всех (практически здоровых, требующих периодического либо постоянного ухода) групп инвалидов и других МГН (в том числе в необходимом объеме - на придомовой территории, участке). На дом или на группу квартирных жилых домов допускается предусматривать блок (группу) помещений для обслуживания данной категории проживающих.

4.6 Для проживания инвалидов необходимо, как правило, выделять отдельную, не проходную и в хорошей взаимосвязи с необходимыми вспомогательными помещениями квартиру, комнату или специальную зону (комната + санитарный узел, холл и т.д.).

4.7 При соблюдении необходимых в соответствии с указаниями СНиП 2.08.01 кратностей воздухообмена в жилых домах допускается устройство однокомнатных и двухкомнатных квартир для проживания инвалидов с односторонней ориентацией (секционного, коридорного и галерейного типа, меридиональной, на юг, ориентации).

4.8 При проектировании в жилых домах общего расселения квартир и жилых помещений для проживания инвалидов с поражением опорно-двигательного аппарата должны обеспечиваться необходимые дополнительные требования к габаритам и качеству коммуникаций, к дополнительным устройствам и оборудованию: для категорий инвалидов с недостатками (или отсутствием) зрения - мероприятия, обеспечивающие ориентирование в жилой среде, для лиц с дефектами слуха - звуковые ориентиры в соответствии с указаниями СНиП 35-01.

4.9 Размещение в жилых домах квартир для нуклеарных семей с инвалидами, бездетных пар и одиночек должно предусматриваться, как правило, не выше третьего этажа (включительно); для сложных семей - не выше девятого этажа. Проживание престарелых и инвалидов выше девятого, лиц с нарушениями психики - выше третьего этажа не рекомендуется по условиям целесообразности и психологического комфорта. Высоту этажей и помещений, предназначенных для проживания инвалидов, рекомендуется принимать в чистоте не менее 2,8 м для практически здоровых или 3,0 м для инвалидов и престарелых.

4.10. В случае необходимости проектирования квартир в нескольких уровнях с проживанием в них инвалидов жилые помещения последних должны находиться на отметке входа и/или общей комнаты (гостиной) либо должны быть предусмотрены специальные коммуникации для передвижения инвалидов (пандусы, лифты, подъемники).

В одноквартирных (коттеджи, дачные и усадебные дома) и блокированных домах, имеющих участок, с уровня основного (первого) этажа необходимо предусматривать выход (выезд) на придомовый/приквартирный участок. При проектировании таких домов помещения для инвалидов следует размещать в уровне первого этажа либо обеспечивать возможность выхода на участок без использования лестниц.

4.11. Для молодых инвалидов рекомендуется применять жилые ячейки с малокомнатной квартирой для каждого проживающего (или малой семьи) с выделением на одну - три такие квартиры общей гостиной, возможно, кухни и т.д. (по типу жилых ячеек общежитий).

4.12 В семейных детских жилых домах для детей-инвалидов рекомендуется проектировать отдельную жилую комнату.

4.13 В общежитиях, как правило, следует выделять зону для проживания инвалидов, обеспеченную хорошей взаимосвязью с помещениями входной зоны и другими, используемыми инвалидами помещениями (группами помещений). До 50 % жилых ячеек, выделяемых для проживания инвалидов, рекомендуется в целях обеспечения необходимой маневренности этого жилого фонда проектировать доступными для инвалидов, передвигающихся на креслах-колясках.

4.14 В рекреационных учреждениях (дома отдыха, пансионаты), как правило, при разряде (категории) учреждения две звезды и выше габариты большинства помещений и коммуникаций удовлетворяют потребностям инвалидов, передвигающихся на креслах-колясках. Необходимость адаптации жилых корпусов, блоков, номеров в зданиях некатегорированных рекреационных учреждений, а также учреждений категории одна и две звезды (частью) следует уточнять заданием на проектирование. Во всех прочих случаях необходимо обеспечивать возможность доступа жилого помещения от входа в здание (в основном предусматривать двери, обеспечивающие нормативный минимум проезда кресла-коляски, а также необходимое оборудование санитарного узла). Номера для расселения инвалидов, передвигающихся на креслах-колясках, следует, как правило, локализовать в уровне первого этажа. Аналогичные условия необходимо обеспечивать и в жилой части гостиниц. При односторонней застройке жилых корпусов ширина галерей должна быть не менее 2,4 м.

4.15 В гостиницах номера для инвалидов и других категорий МГН целесообразно размещать, как правило, в уровне первых этажей (в особенности это относится к инвалидам, передвигающимся на креслах-колясках) и обеспечивать их собственной приемно-вестибюльной группой помещений, предусматривая также доступность инвалидами на креслах-колясках общественных помещений и зон. В гостиницах высокого уровня комфорта пребывание МГН допускается ограничивать и/или локализовать в одной из частей здания.

4.16 Вместимость (число проживающих), количество квартир, жилых ячеек и типологию расселения инвалидов и других категорий МГН в жилой части общественных зданий следует принимать в соответствии с заданием на проектирование с учетом социально-демографических и медико-геронтологических характеристик местного и мигрирующего населения.

4.17 При входе в дом следует (рисунок 4.1) предусматривать пандус или аппарель, ширина и уклон которых допускают в соответствии с указаниями СНиП 35-01 движение кресла-коляски (хотя бы в одном направлении) с уровня земли до отметки входа. В зданиях, строящихся в 1 климатическом районе с проветриваемым подпольем вместо пандусов, при входе рекомендуется проектировать дополнительные наземные вестибюли и подъемники (рисунки 4.2 и 4.3) или лифты, достигающие отметки земли.

Пандусы длиной более 3 м должны иметь ограждения и поручни. Ограждения следует предусматривать при перепаде высот в 0,45 м и более. Высота ограждения должна быть не менее 1,2 м; ограждения балконов и лоджий для передвигающихся на кресле-коляске в зоне высот 0,45-0,7 м должны быть, в дополнение к верхней зоне, прозрачными с тем, чтобы обеспечить инвалиду хороший обзор с уровня кресла-коляски. Высота перил на уклоне должна быть 0,85 м; на горизонтальных участках - 0,9 м (для передвигающихся на кресле-коляске - 0,7 м в обоих случаях). Перила не должны прерываться на поворотах; диаметр перил - 50 мм; пандусы должны быть несгораемыми, а их поверхность - шероховатой.

4.18 Оборудование квартир для проживания инвалидов, специализированных жилых зон общежитий целесообразно применять либо универсальное, либо варьировать, обеспечивая удобство пользования этим оборудованием инвалидами с различными формами поражения конечностей. Рекомендуется применение дистанционных выключателей, регуляторов, запорных и замковых устройств. Пороги при входах (до 0,025 м) могут иметь скошенный притвор.

4.19 В I и II климатических районах при входе в дом следует предусматривать двойной тамбур (в I климатическом районе - с поворотом) с рекомендуемой глубиной отсека не менее 2,2 м. В I климатическом районе тамбур рекомендуется оборудовать воздушно-тепловой завесой. При входе в дом с веранды ее наличие учитывается как один из тамбуров. Применение двойных дверей не рекомендуется. В III климатическом районе для защиты помещений от солнечного перегрева следует предусматривать окраску и отделку светлых тонов.

4.20 Планировка приемно-вестибюльной группы помещений для жилых домов, как правило, должны обеспечивать разворот (360°) кресла-коляски, а также возможность подъезда к почтовым ящикам, доске объявлений, месту отдыха, кладовой уличных колясок и пр. В составе помещений приемно-вестибюльной группы в жилых домах рекомендуется предусматривать колясочную, где помимо детских колясок будет возможно в необходимом количестве хранить уличные кресла-коляски. При этом в колясочной следует предусматривать промежуточные сиденья для пересадки из одной коляски в другую.

4.21 Лифтовые холлы перед дверями лифтов должны иметь ширину не менее 1,6 м. Ширина поэтажных коридоров (включая расширенные лестничные площадки) должна быть не менее 1,6 м. В зоне входов в квартиры, а также при пересечении зон открывающихся наружу дверей квартир рекомендуется обеспечивать ширину не менее 1,2 м от стены до открытого полотна двери. Ширина одного полотна входных дверей, обеспечивающих проход или проезд инвалидов с поражением опорно-двигательного аппарата, должна быть не менее 0,9 м. Ширина тамбура должна быть более ширины входа на 0,3 м с каждой стороны, но не менее чем 1,4 м. Глубина входного тамбура должна быть на 1,2 м более, чем размер наибольшего открывающегося в него полотна двери. Аналогичные размеры рекомендуется обеспечивать и при устройстве двойных тамбуров и тамбуров с поворотами.

4.22 Двери помещений, используемых инвалидами, передвигающимися на кресле-коляске, должны иметь ручки длиной 0,8 м, расположенные на высоте 0,9 м. Устройства для открывания и закрывания дверей и окон, а также выключатели электроосвещения должны находиться в диапазоне высот 1,3-1,6 м. Рекомендуется верхнее расположение устройств для проветривания (фрамуги, форточки) и оснащение их боковыми экранами-щитками для защиты от сквозняков. Двери квартир должны иметь уплотнения в притворах. Перепады высот в порогах на путях движения инвалидов на креслах-колясках должны быть не более 0,025 м для каждой горизонтальной площадки.

4.23 Помещения обслуживания при приемно-вестибюльной группе (бюро заказов, помещение дежурного медперсонала, офис администрации и др.) или на этажах (помещения сушки одежды, поэтажные кладовые, холлы и гостиные и т.д.), встроенные в жилую часть, а также обслуживающие ее общественные помещения общежитий, рекреационных учреждений и гостиниц, должны быть доступны для передвижения на кресле-коляске.

5 ПОМЕЩЕНИЯ

КВАРТИРЫ И ЖИЛЫЕ ЯЧЕЙКИ

5.1 Жилая зона для проживания инвалидов должна иметь, как минимум, жилую комнату, совмещенный санитарный узел, доступный для инвалида, холл-переднюю площадью не менее 4 м2 и собственные коммуникации. При проживании в квартире семьи с одним немощным членом семьи или инвалидом, передвигающимся на кресле-коляске или на костылях, ее площадь допускается увеличивать на 20 %. Общее количество спальных мест в квартире следует, как правило, принимать соответствующим числу членов семьи (расселение по формуле т = п, с учетом наличия одной супружеской пары или более).

5.2 В рекреационных учреждениях для проживания инвалидов и МГН следует предусматривать комплексно оборудованные зоны многофункциональных зданий либо выделять отдельные корпуса (части корпусов) при рассредоточенной (павильонной) композиции рекреационного комплекса.

Если жилые помещения, предназначенные для инвалидов, размещаются в отдельных корпусах, то такие корпуса должны быть связаны с общественной частью комплекса переходами (для условий круглогодичной эксплуатации - теплыми), позволяющими по габаритам передвигаться на кресле-коляске и обеспеченные соответствующей маркировкой и сигнализацией для других категорий инвалидов. Доступность общественных помещений при этом может быть предусмотрена в локальном объеме; доступность территории (в ее части, предназначенной для пользования инвалидами) обязательна.

5.3 Жилые ячейки общежитий, предназначенные для проживания инвалидов, допускается проектировать в нескольких вариантах, в том числе: в составе жилой комнаты на 1-2 чел., дооборудованной передней и санитарным узлом (номер); двух-трех жилых комнат на 1-2 чел., каждая с общей передней, 1-2-мя санитарными узлами и кухней-нишей (номер-комплекс); малогабаритной квартиры на 1-2 комнаты для расселения 2-4 чел., или молодой семьи, имеющей в своем составе 1-2 инвалидов. Посемейное проживание инвалидов в жилых ячейках общежитий допускается проектировать только в номерах и квартирах.

5.4 В квартирах и других помещениях для инвалидов рекомендуется предусматривать зону приема пищи (в кухне, в обеденной зоне рядом с рабочей кухней, в гостиной). Наиболее удобным принято считать выделение обеденной зоны рядом с рабочей кухней. На кухне желательно выделять место для приема пищи.

ЖИЛЫЕ КОМНАТЫ

5.5 Жилые комнаты для проживания инвалидов в жилых домах общего расселения могут быть рассчитаны на одного (одиночки) и двух (пожилая пара, неполные семьи - мать с ребенком-инвалидом, член семьи при немощном инвалиде) человек и должна иметь площадь не менее соответственно 9 и 12 м2 (12 и 16 м2 при расселении в такой комнате инвалида, передвигающегося на кресле-коляске, или немощного, передвигающегося в пределах комнаты, квартиры).

5.6 Площади комнат в жилых ячейках общежитии к числу и составу проживающих приведены в таблице 1.

Таблица 1

Число проживающих, чел.

Тип расселения (проживания)

Площадь жилой комнаты, м2

Квартира

Номер или номер-комплекс

1

16(20)

9(12)

2

24 (30)

16(22)

4

-

-(30)

Примечание. В скобках - при наличии в комнате (квартире) инвалида, передвигающегося на кресле-коляске.

5.7 Ширина жилой комнаты для проживания инвалидов должна быть не менее 3,0 м (для немощных - 3,3 м; передвигающихся на кресле-коляске - 3,6 м). Глубина жилой комнаты должна быть не более ее двойной ширины. При наличии перед фронтом комнаты летнего помещения шириной 1,5 м и более глубина комнаты должна быть не более 4,5 м.

5.8 Для инвалидов, передвигающихся на кресле-коляске, спальное помещение становится многофункциональным, так как наряду с жилыми данное помещение может иметь и рабочие функции. Удобство спальной комнаты для инвалида во многом определяется размещением кроватей, к которым должен быть обеспечен подъезд кресла-коляски. Вблизи кровати должно быть предусмотрено место для хранения кресла-коляски на ночь. Минимальная ширина зоны маневрирования кресла-коляски в спальной зоне должна быть не менее 1,3 м, при этом планировка спальной в целом должна обеспечивать его круговой разворот диаметром 1,5-1,6 м.

5.9 Размеры проходов и проезда кресла-коляски в спальных комнатах рекомендуется принимать по данным таблицы 2.

Таблица 2

Нормируемая зона

Размер, см, не менее

Между спинкой кровати и стеной с окном

50

Между кроватью и стеной с окном

90

Между кроватями

100

Между спинками кроватей или спинкой и стеной

130

Между кроватью и шкафом

170

Между спинкой кровати и соседней кроватью

100

5.10 Для перехода с кресла-коляски на кровать необходимо предусматривать переходные приспособления (потолочные кольца, поворотные штанги, канатные дорожки, петли-держатели и др.) с креплением в конструкциях потолка и стен.

5.11 В ряде случаев бывает необходимо обеспечить двусторонний доступ кровати или исключительно лево-, правосторонний доступ, что следует учитывать при проектировании. В двухместных спальных помещениях кровати, как правило, должны располагаться раздельно. Помимо прочих удобств такая расстановка обеспечивает рациональное использование площади помещения.

5.12 Спальная (рисунок 5.1) должна, как правило, иметь непосредственный (либо через собственный холл) вход в санитарный узел. Прикроватное оборудование должно предусматривать столик (тумбочку) для установки телефона, местного освещения, хранения и выкладки на ночь мелких предметов, лекарств, устройств сигнализации и пр.

Рекомендуется предусматривать дистанционное управление запиранием дверей, осуществляемое с двух пультов - инвалида и дежурного персонала.

5.13 Жилые комнаты (для супружеских пар, неполных семей с инвалидами и пр.) следует оборудовать индивидуальными шкафами для белья, одежды, обуви и других личных вещей. Индивидуальные шкафы для верхней одежды инвалидов следует предусматривать в передних квартир; такие шкафы должны быть либо встроенными, либо подвесными с тем, чтобы обеспечить подъезд к ним вплотную кресла-коляски.

5.14 Жилые помещения для инвалидов и других групп МГН не следует размещать смежно с помещениями с повышенным уровнем шума.

5.15 Площади номеров (рисунок 5.2) в зданиях рекреационных учреждений и гостиниц категории две звезды и ниже следует увеличивать не менее, чем на 20 % или расселять МГН в номерах увеличенной площади (более высокой категории либо заселяемых по другой формуле).

5.16 Площадь общей комнаты (гостиной) рекомендуется, как правило, принимать не менее: в одно-двухкомнатных квартирах - 18 м2; в трех-, четырехкомнатных квартирах - 20-22 м2.

5.17 Общие комнаты (гостиные), индивидуальные жилые комнаты (рисунок 5.2), жилые комнаты номеров и других жилых ячеек должны обеспечивать возможность подъезда на кресле-коляске к месту отдыха, к большинству элементов мебели (в особенности - к шкафам, сервантам, к столу и т.п.), к местам установки бытовой техники; особое значение имеет возможность подъезда к окну и наличие здесь видовой площадки для общения инвалида с внешней средой.

5.18 Мебель и оборудование, устанавливаемые в жилых комнатах, должны допускать возможность пользования ими без посторонней помощи. Заполнение мебелью помещений, которые используются инвалидами и другими категориями МГН, должно быть не более 40 % площади пола. Мебель в помещениях, используемых инвалидом на кресле-коляске, следует расставлять таким образом, чтобы в центре комнаты было свободное пространство, позволяющее осуществлять разворот кресла на 360°. Минимальная ширина проходов и проездов в жилых комнатах и кухне должна быть не менее 0,9 м. Углы мебели и иного штучного оборудования рекомендуется в целях предупреждения травматизма скруглять. Основную мебель желательно применять утяжеленной конструкции или крепить ее с тем, чтобы затруднить ее сдвиг наездом кресла-коляски.

ВСПОМОГАТЕЛЬНЫЕ ПОМЕЩЕНИЯ

5.19 В передних, прихожих, холлах (рисунок 5.3) квартир, жилых ячеек, номеров, предназначенных для расселения инвалидов, передвигающихся на креслах-колясках, должна быть обеспечена полная свобода их передвижения и разворота кресла-коляски на 360° (зона, не занятая мебелью и оборудованием, - 1,6 ´ 1,6 м), а также обеспечена доступность других необходимых помещений.

5.20 Ширина передней должна быть не менее 1,8 м; внутренних коридоров - 1,15 м; полотна дверей - 0,9 м (проем в чистоте - не менее 0,85 м). В передней должно быть предусмотрено место для хранения уличного кресла-коляски. При входе в квартиру и при дверях во все ее помещения следует предусматривать зону для остановки кресла-коляски. Ширина внутренних коридоров должна обеспечивать передвижение и, в необходимых случаях, - разворот кресла-коляски на 90 и 180°.

5.21 В передней рекомендуется предусматривать размещение полки или столика для пакетов, а также на удобной высоте - вешалки и подставки для обуви.

5.22 В квартирах, предназначенных для расселения различных категорий инвалидов, рекомендуется предусматривать увеличенное количество кладовых (рисунок 5.4), встроенных шкафов, прочих помещений для хранения тифлотехники, объемной литературы, костылей и других приспособлений и материалов.

5.23 В составе квартиры, проектируемой для нужд инвалидов, рекомендуется предусматривать помещение для хозяйственных работ и занятий индивидуальной трудовой деятельностью (рисунок 5.11). Ширина такого помещения должна быть не менее 2,5 м; площадь - 8 м2. При отсутствии указанного помещения рабочее место (с приближенным шкафом глубиной 0,45-0,6 м) может предусматриваться в пределах кухни или общей комнаты, а кладовая для хранения материалов и изделий (не менее 4 м2) - как в квартире, так и за ее пределами. Дополнительное рабочее место может быть организовано вблизи остекленной части летнего помещения.

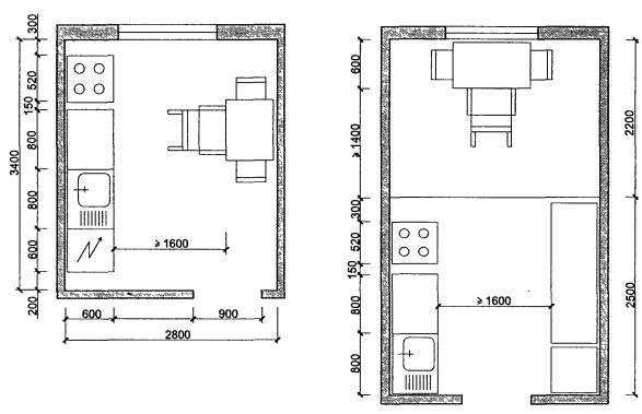
КУХНИ

5.24 Кухни (рисунки 5.5 и 5.6), оборудование которых адаптируется для нужд инвалидов или пожилых, должны, как правило, обеспечивать им возможность самостоятельного ведения домашнего хозяйства, что, помимо комфорта, повышает уровень реабилитации. Планировочные решения кухонь должны позволять осуществлять большинство манипуляций с одной остановки кресла-коляски. При этом зона для кресла-коляски должна обеспечивать возможность его кругового разворота. Диапазон высот установки оборудования при этом должен находиться в пределах 0,4-1,4 м.

5.25 Площадь кухни для квартир с проживанием пожилых пар и малых семей с инвалидами должна быть не менее 9 м2 или, при наличии инвалида, передвигающегося на кресле-коляске, а также для сложных или многодетных семей и семейных детских домов, 12 м2. Возможно сокращение площади рабочей кухни ниже приведенных значений при наличии приближенной обеденной зоны в столовой или гостиной. Для однокомнатных квартир при площади жилой комнаты не менее 16 м2 допускается устройство кухни-ниши (с естественным освещением согласно СНиП 23-05) площадью 4,5-5,5 м2 с фронтом оборудования суммарной протяженностью не менее 2,4 м. Кухня должна иметь ширину не менее: в однокомнатной квартире - 2,2 м; в других - 2,8м.

5.26 Оборудование кухни рекомендуется располагать Г - образно или П - образно (рисунок 5.6) с тем, чтобы обеспечить возможность центрального маневра кресла-коляски. Оборудование должно включать плиту и холодильник, в котором высота нижней от пола полки должна быть 0,6 м. Рабочая поверхность кухонного оборудования должна располагаться на высоте 0,82 м от уровня пола, при этом следует оставлять внизу свободным пространство (0,7 м) для удобного подъезда кресла-коляски. Высота установки оборудования кухни не должна превышать для доступа с уровня кресла-коляски 1,6 м; низ оборудования не должен располагаться менее чем на 0,3 м от уровня пола.

5.27 Рекомендуется применять кухонное оборудование с возможностью индивидуальной регулировки по высоте, при этом целесообразна фиксированная в одном уровне установка всех рабочих поверхностей основного оборудования - от 0,78 до 0,91 м (в зависимости от индивидуальных особенностей обслуживаемых лиц). В нижней части оборудования рекомендуется устраивать ниши (ступени, подножки) для фиксированной опоры ног на высоте 0,2-0,24 м от уровня пола.

5.28 В кухнях для инвалидов и пожилых рекомендуется предусматривать 1-2 места для приема пищи, что позволяет исключить перенос горячей пищи в столовую зону общей комнаты или гостиной.

САНИТАРНЫЕ УЗЛЫ

5.29 Различия в возможности пользования санитарными узлами позволяют выделить следующие группы инвалидов: а) требующие помощи как при передвижении, так и в раздевании и в гигиеническом цикле; б) требующие некоторой помощи в гигиеническом цикле; в) практически не нуждающиеся в посторонней помощи; г) люди, пользующиеся костылями, тростью, т.е. движение которых затруднено. Группе «а» требуется помощь совместно проживающих или персонала, подъемник, зона пересадки; группе «б» - требуется дополнительная площадь для самостоятельного маневра на кресле-коляске, место пересадки, поручни и штанги; примерно то же требуется и инвалидам группы «в», но меньшей площади. Передвигающимся на костылях или с помощью трости требуется наличие элементов поддержки (поручни, штанги), при этом площадь санитарного узла должна быть несколько более обычных стандартов (в пределах 20 %).

5.30 Санитарные узлы (рисунки 5.7, 5.8 и 5.9) для инвалидов могут проектироваться совмещенными либо раздельными. Для инвалидов с поражениями опорно-двигательного аппарата, как правило, применяют совмещенные санитарные узлы, оборудованные унитазом, умывальником и ванной или душем. Рекомендуются к применению сидячие ванны или полибаны с местом для сидения, ванны с открывающимися боковыми дверцами и т.п. Может быть рекомендовано применение вариантной расстановки санитарного оборудования, обеспечивающей учет индивидуальных запросов, а также возможность регулировки устанавливаемого оборудования по высоте. Рациональной может считаться установка оборудования единым фронтом вдоль одной из стен, что облегчает маневр кресла-коляски. Досягаемость умывальника целесообразно предусматривать как с кресла-коляски, так и с унитаза. Пользование душем следует осуществлять сидя на специальной скамье. Для того, чтобы уменьшить число перемещений, возможно применение унитазов, совмещенных с биде.

5.31 В зависимости от набора санитарно-технического оборудования габариты санитарных узлов для инвалидов на кресле-коляске составляют: 2,1´1,9 м (унитаз и умывальник, оба прибора у одной стены) или 1,9´1,8 м (умывальник сбоку); закрытый душ с трапом - 1,7´1,5 м; совмещенный санузел с душем без поддона, с умывальником и унитазом - 2,4´2,2 м.

5.32 Двери санитарных узлов должны, как правило, открываться наружу (при открывании дверей внутрь санитарный узел должен иметь увеличенные размеры). Двери санитарных узлов рекомендуется снабжать запорами, допускающими открывание как снаружи, так и изнутри.

5.33 В санитарных узлах должен быть обеспечен разворот кресла-коляски на 360° (Ø 1,5-1,6 м); при подъезде кресла-коляски к унитазу должна быть зарезервирована площадь для поворота кресла на 90°. Сиденья унитазов для удобства пользования ими инвалидами, передвигающимися на креслах-колясках, должны располагаться на высоте сиденья кресла-коляски (0,5 м). Для подъема сиденья унитаза от номинальной высоты (0,45 м) следует использовать дополнительные подкладки или сиденья. Умывальник (или рукомойник) целесообразно устанавливать на высоте 0,85 м, что допускает непосредственный подъезд кресла-коляски.

5.34 В свободных от оборудования зонах следует предусматривать настенные поручни на высоте 0,9 м диаметром 50 мм (то же - в передних квартир, номеров и других жилых ячеек). Штанги, поручни, подвесные элементы дополнительного оборудования санитарных узлов должны иметь усиленное крепление, рассчитанное на динамическую нагрузку не менее 120 кгс. Диаметр штанг для поддержания - 25-32 мм. Уровень дна ванны должен, как правило, находиться на отметке пола; допускается предусматривать около ванной ступеньку высотой до 0,15 м. При ванной для инвалидов, передвигающихся на креслах-колясках, следует предусматривать дополнительное сиденье для пересадки из кресла-коляски в сиденье в ванной. Пол санитарно-технических помещений не должен быть скользким.

5.35 Раковины умывальников должны быть консольного типа. Краны в ванных и кухнях должны быть обеспечены открывателями локтевого типа и снабжены термостатами, ограничивающими температуру поступающей воды до 50 °С.

5.36 Дополнительное оборудование санитарных узлов для различных категорий инвалидов включает, как правило, поручни (настенной или напольной установки и фиксации), потолочные направляющие или межстенную штангу для подвески подъемника, кольца, трапеции и т.п. Высота установки оборудования должна регулироваться индивидуально. Крепление приборов и оборудования должно быть прочным.

ЛЕТНИЕ ПОМЕЩЕНИЯ

5.37 Летние помещения (террасы, веранды, лоджии, балконы) должны являться обязательной принадлежностью квартир и жилых ячеек для постоянного проживания инвалидов (рисунок 5.10).

5.38 Минимальная ширина летних помещений для использования кресла-коляски должна быть не менее 1,4 м, однако рекомендуется в летних помещениях обеспечивать возможность разворота кресла-коляски. Террасы, веранды, балконы и лоджии должны иметь ветрозащитные (возможно - трансформируемые) стенки-экраны и солнцезащиту. В летних помещениях целесообразно предусматривать возможность сушки белья.

5.39 Низ остекления (и верх глухого ограждения наружных стен и летних помещений) в квартирах для инвалидов на креслах-колясках должен находиться на высоте (не выше) 0,6-0,7 м. Общая высота ограждения, с учетом обрешеченной части, должна быть не менее 1,2 м. Высота порогов не должна превышать 0,025 м. В необходимых случаях, для выравнивания уровней полов основных и летних помещений рекомендуется устройство фальшполов, пропускающих атмосферные осадки до уровня основного пола летнего помещения.

5.40 Площадь летних помещений рекомендуется принимать не менее: для однокомнатных квартир - 3 м2; для двухкомнатных квартир - 6 м2; для трех - пятикомнатных квартир - две лоджии (или балкона) по 6 м2 каждая.

5.41. При квартирах, размещаемых на первом этаже, целесообразно предусматривать террасы с выходом на приквартирный участок; последний рекомендуется закрывать от посторонних взглядов декоративными стенками-экранами или посадками кустарника. В летних помещениях первых этажей возможно устройство люков в подполья (подвалы) для хранения овощей.

ПОМЕЩЕНИЯ ОБЩЕСТВЕННОГО НАЗНАЧЕНИЯ

5.42. Помещения поэтажного обслуживания (кроме помещений, используемых персоналом) жилой части рекреационных учреждений и гостиниц в зоне, обеспечивающей специализированное обслуживание МГН (поэтажные буфеты, гостиные, телевизионные холлы, летние помещения), должны обеспечивать возможность пользования ими инвалидами и престарелыми, включая передвигающихся на креслах-колясках.

 

Варианты устройства входов

4.1

 

 

 

 

Варианты устройства подъемников

4.2

 

 

 

Варианты устройства подъемников

4.3

 

 

 

 

Планировка спальных

5.1

 

Функциональные зоны и критические размеры спальных и спальных помещений с рабочей площадью и шкафами

 

 

Планировка номеров

5.2

 

ГОСТИНИЧНЫЕ НОМЕРА ДЛЯ ОДНОГО ИНВАЛИДА, ПЕРЕДВИГАЮЩЕГОСЯ НА КРЕСЛЕ-КОЛЯСКЕ

ГОСТИНИЧНЫЕ НОМЕРА ДЛЯ ОДНОГО ИНВАЛИДА, НЕ ПОЛЬЗУЮЩЕГОСЯ КРЕСЛОМ-КОЛЯСКОЙ

 

 

Оборудование передней

5.3

 

 

 

Планировка вспомогательных помещений

5.4

 

 

 

Планировка кухонь

5.5

 

ВАРИАНТЫ КУХОНЬ ДЛЯ КВАРТИР ИЗ ДВУХ И БОЛЕЕ КОМНАТ

КУХНЯ ДЛЯ ОДНОКОМНАТНОЙ КВАРТИРЫ

ГАБАРИТЫ УСТАНОВКИ ОБОРУДОВАНИЯ

 

 

Зонирование и оборудование кухонь

5.6

 

ФУНКЦИОНАЛЬНАЯ ЗОНА У ОБЕДЕННОГО СТОЛА В КВАРТИРАХ ДЛЯ СЕМЕЙ С ИНВАЛИДОМ-КОЛЯСОЧНИКОМ

КУХОННЫЙ ФРОНТ ДЛЯ СЕМЬИ С ИНВАЛИДОМ (С “Г” И “П”-ОБРАЗНЫМ РАЗМЕЩЕНИЕМ ОБОРУДОВАНИЯ)

1 - мойка;

2 - электроплита;

3 - холодильник;

4 - полки навесные;

5 - полки поворотные;

6 - стол консольный;

7 - тумба

 

 

Планировка санитарно-технических помещений

5.7

 

ВАРИАНТЫ САНИТАРНЫХ УЗЛОВ С ДУШЕМ И ТРАПОМ ДЛЯ ИНВАЛИДА НА КРЕСЛЕ-КОЛЯСКЕ

ОБОРУДОВАНИЕ САНИТАРНОГО УЗЛА С ДУШЕМ ДЛЯ ИНВАЛИДА НА КРЕСЛЕ-КОЛЯСКЕ

1 - подлокотник на h=50-25см;

2 - горизонтальный поручень;

3 - вертикальный поручень;

4 - откидная скамья;

5 - настенный смеситель;

6 - трап

 

 

Планировка санитарно-технических помещений

5.8

 

ЗОНЫ ПОЛЬЗОВАНИЯ УНИТАЗОМ (ШВЕДСКИЙ ОПЫТ), ЭКСПЕРИМЕНТАЛЬНЫЕ ДАННЫЕ

СОВМЕЩЕННЫЕ САНУЗЛЫ ДЛЯ ИНВАЛИДОВ, ПОЛЬЗУЮЩИХСЯ КРЕСЛОМ-КОЛЯСКОЙ, ОБОРУДОВАННЫЕ ВАННОЙ

 

 

Оборудование санитарных узлов

5.9

 

 

 

Планировка балконов и лоджий

5.10

 

 

 

Рабочее место для надомного труда

5.11

 

I - минимальная рабочая зона;

II - оптимальная рабочая зона;

III - зона досягаемости

1 - рабочий стол;

2 - тара-накопитель (для заготовок и готовых изделий);

3 - стеллажи (для заготовок и готовых изделий)

Ключевые слова: жилые здания, дома, помещения, маломобильные группы населения (МГН), потребности МГН, адаптация



уроки по алготрейдингу на Python с нуля



Яндекс цитирования

   Copyright © 2008-2026 ,  www.infosait.ru

backtrader - уроки алготрейдинга на python