ИНФОСАЙТ.ру
Госты, стандарты, нормативы. В библиотеке 60000 документов. Регулярное обновление. Круглосуточный бесплатный доступ!
БИБЛИОТЕКА ГОСТОВ, СТАНДАРТОВ И НОРМАТИВОВ

:: АЛГОТРЕЙДИНГ ::


АЛГОТРЕЙДИНГ
шаг за шагом


БЕСПЛАТНЫЕ УРОКИ по созданию торговых роботов на PYTHON с нуля, шаг за шагом.


Минимальные знания на PYTHON.
Библиотеки BackTrader и Pandas, сигналы с Pine Script из TradingView.
Связка с брокерами, телеграм.
Создание простых интерфейсов.

 

Все документы, представленные в каталоге, не являются их официальным изданием и предназначены исключительно для ознакомительных целей. Электронные копии этих документов могут распространяться без всяких ограничений. Вы можете размещать информацию с этого сайта на любом другом сайте.


МИНИСТЕРСТВО ВНУТРЕННИХ ДЕЛ РОССИЙСКОЙ ФЕДЕРАЦИИ

СЛУЖБА ОБЩЕСТВЕННОЙ БЕЗОПАСНОСТИ

ГЛАВНОЕ УПРАВЛЕНИЕ ГОСУДАРСТВЕННОЙ ИНСПЕКЦИИ БЕЗОПАСНОСТИ ДОРОЖНОГО ДВИЖЕНИЯ

НАУЧНО-ИССЛЕДОВАТЕЛЬСКИЙ ЦЕНТР ГОСУДАРСТВЕННОЙ ИНСПЕКЦИИ БЕЗОПАСНОСТИ ДОРОЖНОГО ДВИЖЕНИЯ

КОНТРОЛЬ ЗА СОБЛЮДЕНИЕМ НОРМ, ПРАВИЛ И СТАНДАРТОВ ПРИ ПРОЕКТИРОВАНИИ И СТРОИТЕЛЬСТВЕ ПРИДОРОЖНЫХ СООРУЖЕНИЙ (ОБЪЕКТОВ СЕРВИСА)

МЕТОДИЧЕСКИЕ РЕКОМЕНДАЦИИ

Москва 2004

Содержание

Контроль за соблюдением норм, правил и стандартов при проектировании и строительстве придорожных сооружений (объектов сервиса): Методические рекомендации. - М.: НИЦ ГИБДД МВД России, 2004-28 с

На основе нормативных документов (стандартов, норм и правил), рассмотрены вопросы размещения объектов сервиса относительно автомобильной дороги, определения параметров стоянок и подъездов к ним, разработки мероприятий по организации и обеспечению безопасности движения транспорта и пешеходов на территории придорожных сооружений и в зоне их влияния.

Методические рекомендации подготовлены: С.Г. Бородиной, В.В. Елизаровым, В.Ю. Логиновым, С.А. Соболевым, В.М. Тарасенковым.

Предназначены для работников Госавтоинспекции.

Содержат сведения, которые необходимо учитывать при выполнении надзорных функций по согласованию проектов указанных объектов.

Введение

Современная автомобильная дорога представляет собой комплексное сооружение, основным назначением которого является обеспечение безопасного и удобного движения транспортных средств, а также своевременного и качественного обслуживания находящихся в пути водителей, пассажиров и автомобилей.

В соответствии с действующими нормативами [9] сеть объектов сервиса состоит из зданий и сооружений, предназначенных для создания нормальных условий жизнедеятельности находящихся в дороге людей. Она включает сооружения длительного отдыха (автогостиницы, мотели, кемпинги), площадки отдыха, площадки для кратковременной остановки автомобилей, пункты питания (рестораны, кафе, столовые и буфеты), торговли (магазины, киоски), автозаправочные станции (АЗС), дорожные станции технического обслуживания автомобилей (СТОА), пункты мойки автомобилей на въездах в город, устройства для технического осмотра автомобилей (эстакады и смотровые ямы) и устройства аварийно-вызывной связи.

Удобство обслуживания и безопасность движения пользователей объектов сервиса в значительной степени определяются параметрами размещения зданий и сооружений относительно проезжей части дороги, созданием условий для удобного съезда (выезда) с дороги и стоянки транспортных средств. Вместе с тем сложившаяся в настоящее время на автомобильных дорогах страны сеть объектов сервиса во многом несовершенна и имеет ряд недостатков. К числу наиболее распространенных из них относятся: отсутствие или недостаточные размеры благоустроенных стоянок и подъездов к ним, неправильное размещение элементов сооружений относительно проезжей части дороги, нарушение правил применения и недостаточное количество технических средств организации дорожного движения. Все это отрицательно влияет на условия и режим движения транспортных и пешеходных потоков, приводит к возникновению неупорядоченного движения транспортных средств и совершению дорожно-транспортных происшествий.

Одной из основных причин создавшегося положения является то, что при проектировании таких сооружений не всегда учитываются требования, определяющие потребительские свойства элементов объектов сервиса в аспекте безопасности дорожного движения. Кроме того, нередко в целях снижения капитальных затрат из проектов таких сооружений исключаются статьи расходов, направленные на организацию и обеспечение безопасности движения. Поэтому сооружение новых и развитие сети действующих объектов сервиса нередко осуществляется без строительства или увеличения площади эксплуатируемых стоянок и подъездов к ним, разработки или изменения схем организации движения.

В связи с этим в настоящее время наиболее остро проявляется необходимость повышения эффективности осуществляемого Государственной инспекцией безопасности дорожного движения Министерства внутренних дел Российской Федерации (далее - Госавтоинспекцией) государственного контроля за качеством проектирования и строительства объектов дорожного сервиса. Особенно необходим надведомственный контроль за развитием действующей сети таких сооружений на дорогах.

Общие положения

Объекты сервиса рассматриваются как сеть зданий и сооружений, способствующих повышению надежности работы водителей путем создания оптимальных условий их труда и отдыха, качественного обслуживания и эффективности использования автомобильного транспорта при соблюдении требований обеспечения безопасности дорожного движения.

В соответствии с действующим законодательством функцией Госавтоинспекции является осуществление контроля за соблюдением требований нормативных правовых актов в сфере обеспечения безопасности дорожного движения при рассмотрении проектов, контроле за строительством и эксплуатацией объектов автомобильного сервиса.

Данные рекомендации разработаны на основе действующих нормативов по планировочным решениям, организации и обеспечению безопасности дорожного движения при проектировании и размещении элементов генерального плана объектов сервиса относительно дороги.

Рекомендации распространяются на проектируемые, строящиеся, реконструируемые и действующие объекты сервиса, расположенные на автомобильных дорогах I-IV технических категорий, всех дорогах пригородных зон крупных городов и республиканских центров.)

В рекомендациях разъясняются отдельные положения Наставления по службе дорожной инспекции и организации движения Госавтоинспекции, СНиП 2.05.02-85 "Автомобильные дороги", Правил установления и использования придорожных полос федеральных автомобильных дорог общего пользования, других действующих нормативов и рекомендаций.

Термины и определения

В рекомендациях приняты следующие используемые в нормативных документах и специальной технической литературе термины и определения:

сеть объектов сервиса - совокупность расположенных на дороге сооружений и зданий, предназначенных для обслуживания участников дорожного движения;

основная дорога- дорога, обслуживаемая рассматриваемым объектом сервиса;

транзитный транспортный поток -4 автотранспорт; движущийся по основной дороге мимо объекта сервиса без съезда на его территорию;

зона влияния - участок основной дороги, в пределах которого сказывается возмущающее влияние объекта сервиса на режим и безопасность движения транзитного транспортного потока;

основные элементы генерального плана объекта сервиса - здание, площадка для стоянки (стоянка) автомобилей, въезд и выезд с нее, пешеходные дорожки и тротуары;

комплекс объектов сервиса - совокупность расположенных на единой территории двух и более сооружений и зданий, имеющих общие стоянки и подъезды к ним;

полоса отвода дороги - совокупность земельных участков, предоставленных в установленном порядке для размещения соответствующих конструктивных элементов и инженерных сооружений автомобильной дороги, а также зданий, сооружений, защитных и декоративных лесонасаждений и устройств и других объектов, имеющих специальное назначение по обслуживанию указанной дороги;

придорожная полоса - участки земли, примыкающие к полосе отвода автомобильных дорог, в границах которых устанавливается особый режим землепользования для обеспечения безопасности дорожного движения и населения, а также обеспечения безопасной эксплуатации автомобильной дороги и расположенных на ней сооружений с учетом перспективы их развития.

Классификация и состав объектов сервиса

Каждый объект сервиса наряду с основным зданием должен иметь в своем составе площадку для стоянки автомобилей с въездом на нее и выездом с нее, тротуары и пешеходные дорожки, туалет и мусоросборник. Обязательное наличие перечисленных элементов определяет специфику объектов сервиса всех типов.

По своему назначению объекты сервиса делятся на три группы: для обслуживания участников дорожного движения (водителей и пассажиров), технического обслуживания автомобильного транспорта и устройства аварийно-вызывной связи. К первой из них относятся:

площадки отдыха, которые предназначены для кратковременного отдыха водителей и пассажиров транспортных средств. Они состоят из трех планировочных зон: стоянки с въездом и выездом; отдыха и санитарно-гигиенической. Кроме этих обязательных элементов генеральный план площадки отдыха может дополнительно включать зону технического осмотра транспорта с эстакадой или смотровой ямой;

пункты торговли (магазины, павильоны, киоски), различающиеся по размерам и капитальности зданий, площади торгового зала, времени обслуживания, ассортименту товаров и методам продажи;

пункты (предприятия) питания (рестораны, кафе, столовые, буфеты и пр.), которые различаются размерами и капитальностью зданий, числом мест, временем и видом обслуживания, номенклатурой продукции;

сооружения длительного отдыха (автогостиницы, мотели, кемпинги), отличающиеся планировкой и капитальностью зданий, временем эксплуатации (круглогодичные, сезонные), количеством, площадью, размерами стоянок и их размещением относительно зданий. Автогостиницы близки по структуре к гостиницам общего типа и состоят из многоэтажного корпуса и охраняемых стоянок. Мотели и кемпинги в отличие от автогостиниц обеспечивают поэкипажное расселение автотуристов с обязательным наличием индивидуальной стоянки автомобиля вблизи жилых помещений.

Во вторую группу объектов сервиса входят сооружения, предназначенные для технического обслуживания транспортных средств (заправка топливом и смазочными материалами, технический осмотр, ремонт и мойка), - автозаправочные станции (АЗС), станции технического обслуживания (СТО), пункты технической помощи (ПТП), пункты мойки автомобилей, а также устройства для технического осмотра автомобилей (эстакады, смотровые ямы).

Устройства для технического осмотра автомобилей (смотровые ямы и эстакады) не являются самостоятельным объектом автомобильного сервиса. Как правило, их сооружают на площадках отдыха, на территории СТО и ПТП.

На территории, комплексных объектов концентрируются значительные транспортные и пешеходные потоки, что усложняет обстановку и отрицательно сказывается на безопасности дорожного движения. Поэтому стадийное развитие комплексов на базе объекта одного вида всегда должно включать соответствующие, изменения площади стоянок и подъездов к ним, схем и номенклатуры технических средств организации дорожного движения.

Принципы проектирования и размещения объектов сервиса

Основным принципом организации сети объектов сервиса является создание единой системы обслуживания на всем протяжении автомобильной дороги (или ее отдельных участках) при обеспечении безопасности и удобства движения как для пользователей данных сооружений, так и для водителей транзитного транспорта [3], [5], [12].

При проектировании объектов сервиса, расположенных вблизи и на территории придорожных населенных пунктов, в расчете эксплуатационных характеристик должна быть дополнительно учтена возможность пользования их услугами жителей этих населенных пунктов [3], [9 - 10].

Расстояние между объектами сервиса на автомобильных дорогах и их вместимость должны соответствовать нормативным требованиям [3], [9]. За основу схемы размещения комплексов обслуживания и отдельно стоящих сооружений по длине дороги следует принимать модуль (единицу протяженности дороги), соответствующий рекомендуемому расстоянию между площадками отдыха на дорогах I-II категорий - от 15 до 20 км, III категории - 25-35 км и IV категории - 45-55 км.

Планировочные решения объектов сервиса

Основные условия для согласования размещения объектов сервиса в пределах придорожных полос состоят в следующем:

размещение объектов не должно снижать пропускную способность, ухудшать видимость на автомобильной дороге и другие условия обеспечения безопасности движения и эксплуатации этой дороги и расположенных на ней сооружений, создавать угрозу безопасности населения;

место размещения объектов рекомендуется выбирать с учетом перспективной реконструкции основной дороги; размещение, проектирование и строительство объектов следует проводить с учетом требований действующих стандартов, технических норм в части безопасности дорожного движения и экологической безопасности.

Размещение объектов сервиса в пределах придорожных полос федеральных автомобильных дорог общего пользования должно осуществляться в соответствии с нормами проектирования и строительства этих объектов, а также планами и генеральными схемами их размещения, утверждёнными Государственной службой дорожного хозяйства Министерства транспорта Российской Федерации по согласованию с Главным управлением ГИБДД СОБ МВД России, органами исполнительной власти субъектов Российской Федерации и органами местного самоуправления [6].

При выборе места размещения объектов сервиса следует стремиться к сокращению до минимума числа примыканий, подъездов к основной дороге и съездов с нее.

Строительство и содержание объектов сервиса, включая площадки для стоянки автомобилей, подъезды к ним и съезды с них, осуществляется за счет средств их владельцев.

Решения о предоставлении земельных участков в пределах придорожных полос или земельных участков, находящихся вне этих полос, но требующих специального доступа к ним (подъездов, съездов, примыканий и т.п.), а также земельных участков под площадки для стоянки и остановки автомобилей принимаются уполномоченными на то органами в установленном порядке по согласованию с соответствующими органами управления автомобильными дорогами и органами Госавтоинспекции.

Объекты сервиса рекомендуется размещать на площадках в пределах полосы отвода дороги или непосредственно примыкающих к ней местах, непригодных для сельскохозяйственных работ, с естественным водоотводом. Их не следует располагать на участках с уклоном более 40 ‰, на горизонтальных кривых радиусом менее 1000 м, на внутренней стороне горизонтальных кривых, на выпуклых вертикальных кривых радиусом менее 10 тыс. м, ближе 250 м от железнодорожных переездов и 400 м от начала переходно-скоростных полос транспортных развязок, на участках, где коэффициент безопасности менее 0,8, а также там, где строительство сооружения приведет к созданию условий, при которых коэффициент безопасности будет менее 0,8 и коэффициент аварийности более 20.

Площадку для строительства объектов сервиса рекомендуется выбирать по возможности в живописных местах. Размещение сооружений относительно дороги должно обеспечивать наибольшую эффективность использования территории и зданий с учетом роли, которую сооружение в дальнейшем будет играть в общем архитектурном ансамбле дороги и окружающем ландшафте. Должна быть также учтена перспектива перевода основной дороги в более высокую категорию и дальнейшего стадийного развития комплекса объектов сервиса.

Площадки отдыха размещают на транзитных участках дорог не ближе 1 км от границ придорожных населенных пунктов. Их рекомендуется располагать в живописных местах (на опушках и лесных полянах, берегах водоемов, вблизи памятников).

Отдельно стоящие объекты сервиса остальных видов и их комплексы размещаются как на транзитных участках дорог, так и на территории придорожных населенных пунктов, предпочтительно на их окраинах у границ перспективной застройки.

На дорогах I категории с разделительной полосой сооружения одного вида должны располагаться только парно по обе стороны дороги со смещением навстречу движению на расстояние 150-200 м между точками примыкания переходно-скоростиых полос. Такое размещение однотипных объектов отдельно для каждого направления также рекомендуется для дорог остальных категорий при интенсивности движения транспорта свыше 4000 авт./сут [3]. При размещении объектов сервиса с одной стороны дороги для пользователей услугами сооружений, движущихся в противоположном направлении, должны быть предусмотрены места разворота либо на противоположной стороне дороги устроена стоянка со смещением навстречу движению на расстояние не менее 150 м и организацией пешеходного перехода.

Комплексы объектов сервиса не следует размещать ближе 1 км от мостовых переходов. Съезды к сооружениям должны быть расположены от пересечений и примыканий на расстоянии не менее 1 км на дорогах I категории, 0,5 км - II категории и 0,3 км - III, IV категории.

Допускается размещение одного объекта или комплекса в 400-500 м от пересечения автомобильных дорог в разных уровнях на одной из примыкающих дорог. В этом случае для подъезда к сооружению автомобилей встречного направления используются съезды развязки.

При размещении АЗС минимально допустимое расстояние от кромки проезжей части основной дороги до бензораздаточных колонок или границ подземных резервуаров для хранения нефтепродуктов должно быть не менее 25 м для дорог I категории и 15 м - для дорог остальных категорий.

В общем случае элементы генерального плана объектов сервиса и их комплексов должны располагаться относительно основной дороги в следующем порядке: транспортная зона (съезд-стоянка-выезд), зона обслуживания (основное здание объекта, тротуары и пешеходные дорожки). В комплексных сооружениях транспортные зоны входящих в них объектов должны быть по возможности объединены. Вместе с тем стоянки для длительного хранения автомобилей у мотелей, гостиниц и кемпингов рекомендуется размещать обособленно.

При планировке различных объектов сервиса в составе одного комплекса ближе к основной дороге следует располагать сооружения для обслуживания автомобилей (АЗС, СТО, ПТП, эстакады и пр.), а далее - сооружения для обслуживания водителей и пассажиров (зона отдыха, пункты питания, торговли, мотели и кемпинги).

Виды планировочных решений территории объектов сервиса и их комплексов относительно основной дороги сводятся к двум основным схемам - линейной и тупиковой (рис.1).

Рис. 1 Основные схемы размещения объектов сервиса относительно основной дороги:

а - линейная; б - тупиковая; 1 - здание объекта; 2 - стоянка; 3 - подъезды; 4 - переходно-скоростные полосы; 5 - газон; 6 - основная дорога

Самой распространенной и в наибольшей степени отвечающей потребностям проезжающих является линейная схема. Она характеризуется размещением всей территории объекта или ее части в пределах полосы отвода основной дороги или на площадке, непосредственно примыкающей к ней. Эта схема предусматривает отдельные въезд и выезд с организацией одностороннего движения. Удаление кромки покрытия на стоянке от края проезжей части основной дороги должно быть не менее 6 м (минимально допустимое удаление независимо от категории дороги составляет - 2,7 м). Территорию объектов, расположенных согласно данной схеме, желательно отделять от основной дороги полосой зеленых насаждений либо островком безопасности шириной 6-20 м. При этом основное здание объекта сервиса должно быть расположено в наиболее удаленной по отношению к основной дороге части территории на расстоянии не менее 30 м от края проезжей части основной дороги. В случае расположения объектов сервиса (пунктов питания и торговли) на территории придорожных населенных пунктов это расстояние должно быть не менее 20 м.

Тупиковая схема представляет собой размещение территории объекта за пределами полосы отвода основной дороги (или у ее границы) в прилегающей зоне и соединение ее с дорогой одним подъездом, проектируемым как примыкание, по которому осуществляются въезд на территорию и выезд с нее. Ширина проезжей части такого подъезда должна быть не менее 4,5 м с обочинами по 1,75 м, укрепленными по 0,75 м с каждой стороны. Подъезд должен заканчиваться стоянкой, которая кроме расчетного количества стояночных мест для автомобилей включает поворотное кольцо радиусом по оси проезда не менее 12 м для организации кругового движения или площадку для разворота размером не менее 20×20 м. Как правило, влияние на безопасность и режим движения расположенных таким образом объектов аналогично примыканию в одном уровне второстепенной дороги.

Для обеспечения удобства и безопасности движения пешеходов в генеральном плане объектов сервиса должны быть предусмотрены тротуары и пешеходные дорожки. При расположении объектов на территории придорожных населенных пунктов параметры этих элементов устанавливаются согласно нормативным требованиям [10]. В остальных случаях пешеходные дорожки располагают за пределами обочин основной дороги не ближе 2,7 м от кромки проезжей части.

Ширина тротуаров и пешеходных дорожек определяется интенсивностью движения пешеходов в часы "пик". Минимальное значение данного параметра составляет 1,0 м. При интенсивности движения пешеходов от 100 до 1000 и более чел/ч ширина дорожки должна составлять 1,5 м с последующим увеличением на одну полосу шириной 0,75-м на каждую тысячу пешеходов в час.

Для обеспечения безопасности движения и удобства обслуживания проезжающих должно быть предусмотрено освещение территории объектов сервиса, параметры которого регламентируются нормами для соответствующих предприятий [11]. Освещение стоянок в темное время суток обязательно. При этом не должно допускаться ослепление проезжающих по основной дороге.

Стоянки и подъезды к объектам сервиса

Площадка для стоянки автомобилей - один из основных и обязательных элементов генерального плана всех объектов сервиса. Ее размеры и планировка определяются видом и эксплуатационными характеристиками сооружений, схемой их размещения относительно основной дороги.

В комплексах объектов сервиса, имеющих в своем составе автогостиницы, мотели и кемпинги, наряду со стоянкой для кратковременной остановки следует предусматривать специальные отдельные площадки для длительной стоянки автомобилей. При этом для пользователей мотелей и кемпингов обязательно наличие прямого контакта жилых помещений со стоянкой автомобилей путем строительства индивидуальных стоянок.

Рекомендуется избегать устройства стояночных полос у кромки проезжей части основной дороги и на ее обочинах.

Стоянки следует размещать за пределами земляного полотна основной дороги в непосредственной близости от здания объекта сервиса на расстоянии до него не более 100 м. Количество мест на стоянке должно соответствовать эксплуатационным характеристикам объекта и не допускать скопления транспорта на въездах, выездах, прилегающей территории и обочинах основной дороги. В общем случае стоянка включает собственно площадку для стоянки, зону маневрирования, служащую для въезда, выезда и движения автомобилей в ее пределах.

Планировочные характеристики стоянок - размеры площадки для постановки на стоянке одного автомобиля (ячейки), внутренних проездов, радиусов поворотов, зоны маневрирования устанавливаются исходя из планировки и параметров территории объекта и схемы расстановки автомобилей на стоянке.

На стоянках следует предусматривать отдельные места для размещения легковых, грузовых автомобилей и автобусов. У предприятий питания и торговли, а также на больших площадках отдыха грузовые автомобили следует располагать слева, а легковые и автобусы - справа по ходу движения. При этом рекомендуется стоянки автобусов размещать возможно ближе к пунктам питания, мотелям, гостиницам и кемпингам; грузовые автомобили и автобусы устанавливать по прямоточному способу параллельно оси движения (продольно под углом 0), а легковые - преимущественно по косоугольной схеме под углом 45-90. Наиболее рациональный угол установки легковых автомобилей на стоянке 45-60. Перпендикулярная установка автомобилей (под углом 90) рекомендуется при продолжительной стоянке, а также в стесненных условиях [5], [8], [12].

Размеры ячейки определяются габаритной длиной и шириной расчетного автомобиля (наиболее распространенной модели среди возможных пользователей стоянки). Для обеспечения возможности обхода и открывания дверей автомобиля размеры сторон ячейки должны быть на 0,5 м больше соответствующих размеров расчетного автомобиля. При продольном расположении стоянки (под углом 0) ячейки объединяют по две и оставляют между ними зазор не менее 2 м. При постановке на стоянку автобусов этот зазор увеличивается до 3 м.

Планировка стоянки должна обеспечивать проезд к месту стоянки автомобиля при движении вперед, прямо и по возможности без маневрирования; не допускается выезд со стоянки при маневрировании задним ходом.

Ширина площадки для маневрирования определяется радиусом поворота автомобилей, их длиной, а также углом установки автомобилей на стоянке.

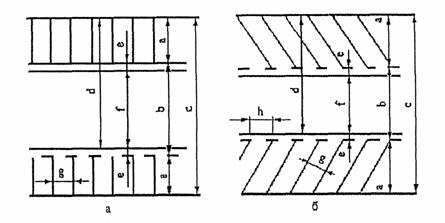
Параметры всех планировочных элементов стоянок зависят от схемы расстановки автомобилей [8]. Основные размеры элементов планировки стоянок для различных углов установки автомобилей приведены на рис.2 и в табл.1.

Планировка и параметры подъездов к объектам сервиса оказывают существенное влияние на режим и безопасность движения автомобилей. Въезжающие на стоянки и выезжающие с них автомобили не должны затруднять или задерживать движение транзитного транспорта по основной дороге.

Рис.2 Основные схемы расстановки автомобилей на стоянке:

а - прямоугольная; б - косоугольная

Таблица 1

Угол установки автомобиля, град.

Размеры элементов, м

Усредненная площадь на 1 автомобиль, м2

а

b

с

d

е

f

g

h

Стоянка для легковых автомобилей с двухполосным проездом

90

4,5

7,0

16,0

11,0

0,5

6,0

2,3

2,3

18

Стоянка для легковых автомобилей с однополосным проездом шириной 4,5 м

90

4,5

5,5

14,5

9,5

0,5

4,5

3,0

3,0

22

60

5,5

5,5

15,6

10,05

0,5

4,5

2,3

3,65

20

45

4,8

4.0

13,6

8,8

0,5

3,0

2,3

3,25

22

Стоянка для грузовых автомобилей с двухполосным проездом

90

5,5

7,0

18,0

12,0

0,5

6,0

2,5

2,5

22

Стоянка для грузовых автомобилей с однополосным проездом

90

5,5

5,5

16,5

10,5

0,5

4,5

3,0

3,0

27

60

5,6

5,5

16,7

10,6

0,5

4,5

2,5

2,9

24

45

5,29

4,0

14,6

9,3

0,5

3,0

2,5

3,55

26

Стоянка для автобусов

90

9,5

10,5

29,5

19,5

0,5

9,5

4,0

4,0

59

60

8,6

8,0

25,7

16,1

0,5

7,0

4,0

4,6

57

Согласно действующим нормативам [9], в местах примыкания съездов к объектам сервиса и выездов с их территории на дорогах I-IV категорий предусматриваются переходно-скоростные полосы, параметры которых назначаются исходя из интенсивности движения автотранспорта на подъездах: на дорогах I категории при интенсивности съезжающего (выезжающего) транспорта 50 и более приведенных ед/сут; на дорогах II и III категорий - при интенсивности 200 и более приведенных ед/сут. Длина переходно-скоростных полос разгона и торможения полной ширины составляет соответственно от 30 до 230 м и от 30 до 110 м с отгонами от 30 до 80 м в зависимости от категории и продольного уклона основной дороги (табл.2).

Таблица 2

Категории дорог

Продольный уклон, %о,

Длина полос полной ширины

Длина отгона полос разгона и торможения, м

на спуске

на подъеме

для разгона

для торможения

I-б и II

40

-

140

110

80

20

-

160

105

80

0

0

180

100

80

-

20

200

95

80

-

40

230

90

80

III

40

-

110

85

60

20

-

120

80

60

0

0

130

75

60

-

20

150

70

60

-

40

170

65

60

IV

40

-

30

50

30

20

-

35

45

30

0

0

40

40

30

-

20

45

35

30

-

40

50

30

30

При сопряжении переходно-скоростных полос со съездами, имеющими самостоятельные проезжие части для поворачивающих автомобилей, длину переходно-скоростных полос полной ширины допускается уменьшать в соответствии с расчетными скоростями на съездах, но не менее чем до 50 м для дорог I-б и II категорий и до 30 м - для дорог III категории. Отгон полос торможения следует начинать с уступа величиной 0,5 м. При выходе со съезда должна быть обеспечена видимость конца переходно-скоростной полосы. Ширина переходно-скоростных полос должна быть равна ширине полос проезжей части основной дороги.

На дорогах I категории обочины, прилегающие к переходно-скоростным полосам, укрепляются на ширину 1 м.

Радиусы кривых сопряжения съездов и выездов с основной дороги принимаются в зависимости от категории дороги не менее 25, 20 и 15 м соответственно на дорогах I, II, III и IV категорий.

При расчете на регулярное движение автопоездов (более 25 % в составе съезжающего потока) радиусы кривых на съездах увеличиваются до 30 м.

Въезды на территорию объектов сервиса, расположенных по линейному типу, и выезды с нее рекомендуется строить однополосными, с односкатным поперечным уклоном проезжей части, шириной 3,0-3,5 м без бордюров, с обочинами по 1,5 м (или шириной 4 м с бордюрами). Углы примыкания въезда и выезда должны быть соответственно не более 25-28 и 15-25, что обеспечивает плавное изменение траектории движения автомобилей и достаточную видимость.

Организация движения в зоне влияния и на территории объектов сервиса

Безопасность и удобство движения пешеходов и транспорта в зоне влияния и на территории объектов сервиса в значительной степени определяются правильным применением технических средств организации дорожного движения.

Схема организации дорожного движения (схема ОДД) на основной дороге в зоне влияния объекта сервиса и на его территории должна быть в технических проектах строительства и реконструкции автомобильных дорог; в проектах нового строительства, реконструкции и расширения действующих объектов сервиса на эксплуатируемых дорогах, предусматривающих увеличение перечня и повышение качества предоставляемых услуг.

Схема ОДД должна обеспечивать разделение транспортных потоков (транзитного, съезжающего, медленно движущегося по территории сооружения и выезжающего с нее транспорта) и путей движения пешеходов; организацию движения потоков транспорта и пешеходов в зоне влияния и на территории объектов; обозначение мест стоянки и организацию движения автомобилей на ее территории.

Схема ОДД включает дислокацию дорожных знаков, горизонтальной разметки, светофоров, дорожных ограждений и направляющих устройств на основной дороге в зоне влияния объекта сервиса, на его территории и подъездах в соответствии с ГОСТ 23457-86 и ГОСТ Р 51256-99 [1, 2].

Для информирования участников дорожного движения на основной дороге следует применять знаки сервиса (6.1-6.11). На дорогах вне населенных пунктов они устанавливаются предварительно за 60-80, 15-20 км и 400-800 м от обозначаемого объекта с указанием этого расстояния на знаках.

На знаках сервиса, устанавливаемых за 15 км и более от объектов сервиса, расположенных в стороне от дороги (согласно тупиковой схеме), дополнительно следует учитывать и расстояние от объекта до места поворота к нему с основной дороги. Допустима установка нескольких знаков сервиса (не более 3) на одной стойке.

Непосредственно у съездов к объектам сервиса, имеющим внешние признаки, раскрывающие их функциональное назначение, знаки сервиса допускается не устанавливать.

При размещении сооружения с одной стороны дороги (II -III категорий) на расстоянии 200-300 м до примыкания въезда на территорию сооружения (и после примыкания выезда) предусматривается место разворота, обозначенное знаками 5.11.1 и 5.11.2.

Дорожные знаки и разметка на стоянках линейного типа должны обеспечивать сквозной проезд транспорта к месту стоянки и исключать возможность пересечения траекторий движения автомобилей. Для лучшей ориентации водителей у въезда на территорию объекта рекомендуется размещать схему проезда, стоянки и выезда.

Скорость движения транспорта на территории объектов сервиса не должна превышать 30 км/ч. Наряду со знаками на стоянках и внутренних проездах допускается применение активных средств воздействия на скорость движения - искусственных неровностей [7].

Граница территории объектов, расположенных по линейной схеме, должна быть отделена от проезжей части основной дороги полосой зеленых насаждений, островками безопасности или газоном, шириной не менее 6,0 м. При несоблюдении данного условия рекомендуется применение дорожных ограждений.

Территория и подходы к объекту сервиса должны быть освещены. Освещенность должна соответствовать требованиям СНиП 23-05-95 [11]. При расположении опор освещения ближе 4 м от края проезжей части следует устанавливать дорожные ограждения.

Движение пешеходов по транспортной зоне территории объектов не допускается. Пешеходные дорожки (тротуары) должны быть вынесены за пределы внутренних проездов и стоянок.

Планировка объектов сервиса и оборудование их территории должны исключать возможность неорганизованных переходов пешеходами основной дороги. Для этих целей на автомобильных дорогах I и II категорий следует монтировать ограждения по краям тротуаров (на дорогах I категории - дополнительно сетки по оси разделительной полосы).

При наличии интенсивного движения пешеходов на основной дороге в зоне влияния объектов сервиса следует предусматривать оборудованные пешеходные переходы [8-9]. На практике применяются следующие типы пешеходных переходов: наземные (нерегулируемые и со светофорным регулированием), пешеходные переходы в разных уровнях (надземные и подземные).

В проектах пешеходных переходов у объектов сервиса, расположенных на территории придорожных населенных пунктов, необходимо учитывать и местное пешеходное движение. На территории малого населенного пункта протяженностью до 0,5 км допускается устройство не более двух наземных пешеходных переходов с интервалом 150-200 м; в крупных населенных пунктах интервал между пешеходными переходами должен быть не более 300 м. Места расположения наземных пешеходных переходов должны быть видимы с основной дороги на расстоянии не менее 150 м.

Оборудование нерегулируемых пешеходных переходов включает применение дорожных знаков 5.16.1, 5.16.2 и горизонтальной разметки 1.14.1 при ширине пешеходного перехода менее 6 м и 1.14.2-6 м и более. Ширина размечаемого пешеходного перехода назначается с учетом интенсивности пешеходного движения из расчета 1 м на каждые 500 чел./час, но не менее 4 м. Кроме знаков 5.16.1 (слева) и 5.16.2 (справа) вне населенных пунктов устанавливают предупреждающие дорожные знаки 1.20 "Пешеходный переход" за 50 и 150 м от перехода.

На регулируемых пешеходных переходах совместно с разметкой 1.14 применяется разметка 1.12 "Стоп-линия". Светофоры размещаются с обеих сторон проезжей части на расстоянии 1 м от границы пешеходного перехода.

На дорогах I категории устраиваются пешеходные переходы только в разных уровнях (подземные или надземные).

В соответствии с нормами [9] пешеходные переходы в разных уровнях через дороги I-б и II категорий следует проектировать при интенсивности пешеходного движения 100 чел./ч и более - для дорог I-б категории и 250 чел./ч и более - для дорог II категории.

Необходимость введения светофорного регулирования и строительства надземного (подземного) пешеходного перехода устанавливается на основе технико-экономических расчетов. Выбор типа пешеходного перехода [8] определяется соотношением интенсивности движения пешеходов Nпеш и транспорта по основной дороге Na (рис. 3).

При устройстве пешеходных переходов в разных уровнях обязательно принятие мер по устранению возможности выхода пешеходов на проезжую часть основной дороги (пешеходные ограждения и сетки на оси разделительных полос).

Подземные и надземные пешеходные переходы обозначаются соответствующими знаками 5.17.1-5.17.4, устанавливаемыми изображением навстречу основным пешеходным потокам у лестничных сходов пешеходных тоннелей, мостов и путепроводов.

Рис. 3 Области применения пешеходных переходов различных типов:

I - нерегулируемые переходы; II - переходы со светофорным регулированием; III - пешеходные переходы в разных уровнях (надземные и подземные)

Целесообразность введения светофорного регулирования, строительства пешеходных переходов в разных уровнях на дорогах II и III категорий в каждом конкретном случае определяется исходя из значений и соотношения интенсивности движения пешеходных и транспортных потоков на основе результатов технико-экономических расчетов.

Список литературы

1. ГОСТ 23457-86 Технические средства организации дорожного движения. Правила применения.

2. ГОСТ Р 51256-99 Технические средства организации дорожного движения. Разметка дорожная. Типы и основные параметры. Общие технические требования.

3. Методические указания по определению состава объектов автосервиса и их размещения на автомобильных дорогах общегосударственного и республиканского значения в РСФСР. РСН 62-86 / Гипродорнии. - М.: ЦБНТИ Минавтодора РСФСР, 1987.-64 с.

4. Наставление по службе дорожной инспекции и организации дорожного движения Государственной инспекции безопасности дорожного движения Министерства внутренних дел Российской Федерации. Утверждено приказом МВД России от 8 июня 1999 г. № 410.

5. Обеспечение безопасности движения при размещении придорожных сооружений обслуживания участников движения. Методические рекомендации. - М., ВНИИБД МВД СССР, 1984.-22 с.

6. Правила установления и использования придорожных полос федеральных автомобильных дорог общего пользования. Утв., постановлением Правительства РФ от 1 декабря 1998 г. № 1420.

7. Применение искусственных неровностей на улицах и дорогах. Методические рекомендации. - М., ГУГИБДД МВД России, 2000.-14 с.

8. Рекомендации по обеспечению безопасности движения на автомобильных дорогах. - Отрасл. дор. метод. док./Росавтодор Минтранса России. - М. 2002. - 220 с.

9. СНиП 2.05.02-85 Автомобильные дороги.

10. СНиП 2.07.01-89 Градостроительство. Планировка и застройка городских и сельских поселений.

11. СНиП 23-05-95 Естественное и искусственное освещение.

12. Указания по обеспечению безопасности дорожного движения на автомобильных Дорогах. ВСН 25-86. Минавтодор РСФСР. - М.: Транспорт, 1988.-183 с.

13. Хоняк Я.В., Гончаренко Ф.П., Копилевич С.Л. Инженерное оборудование автомобильных дорог. - М.: Транспорт, 1990-232 с.



уроки по алготрейдингу на Python с нуля



Яндекс цитирования

   Copyright © 2008-2026 ,  www.infosait.ru

backtrader - уроки алготрейдинга на python