ИНФОСАЙТ.ру
Госты, стандарты, нормативы. В библиотеке 60000 документов. Регулярное обновление. Круглосуточный бесплатный доступ!
БИБЛИОТЕКА ГОСТОВ, СТАНДАРТОВ И НОРМАТИВОВ

:: АЛГОТРЕЙДИНГ ::


АЛГОТРЕЙДИНГ
шаг за шагом


БЕСПЛАТНЫЕ УРОКИ по созданию торговых роботов на PYTHON с нуля, шаг за шагом.


Минимальные знания на PYTHON.
Библиотеки BackTrader и Pandas, сигналы с Pine Script из TradingView.
Связка с брокерами, телеграм.
Создание простых интерфейсов.

 

Все документы, представленные в каталоге, не являются их официальным изданием и предназначены исключительно для ознакомительных целей. Электронные копии этих документов могут распространяться без всяких ограничений. Вы можете размещать информацию с этого сайта на любом другом сайте.


ПРАВИТЕЛЬСТВО МОСКВЫ
МОСКОМАРХИТЕКТУРА

РЕКОМЕНДАЦИИ
по проектированию домов милосердия
для инвалидов среднего и старшего возраста

2003

ПРЕДИСЛОВИЕ

1. РАЗРАБОТАНЫ: ГУП МНИИП «Моспроект-4» (архитекторы Любомудрова К.И., Кряжевских М.А., инженер Тихомирова И.Б.).

2. ПОДГОТОВЛЕНЫ К УТВЕРЖДЕНИЮ И ИЗДАНИЮ Управлением перспективного проектирования, нормативов и координации проектно-изыскательских работ Москомархитектуры.

3. СОГЛАСОВАНЫ: Департаментом социальной защиты населения города Москвы, Москомархитектурой.

4. УТВЕРЖДЕНЫ И ВВЕДЕНЫ В ДЕЙСТВИЕ указанием Москомархитектуры от 9.12.03 № 49.

СОДЕРЖАНИЕ

ВВЕДЕНИЕ

Дом милосердия для инвалидов среднего и старшего возраста (далее ДМ) является самостоятельным типом социального учреждения, деятельность которого направлена на оказание бытовой и лечебно-профилактической помощи лицам, находящимся на постельном режиме или с ограниченной возможностью передвижения, нуждающимся в постоянной посторонней помощи.

Назначением ДМ является обеспечение бытовой, медицинской, психологической и социальной помощи престарелым и инвалидам, включая занятия трудовой деятельностью.

1. ОБЛАСТЬ ПРИМЕНЕНИЯ

1.1. Настоящие Рекомендации разработаны для г. Москвы как дополнение к действующим на ее территории нормативным документам по проектированию и строительству и распространяются на проектирование новых и реконструкцию существующих ДМ.

1.2. Настоящие Рекомендации устанавливают основные положения по размещению, участку, территории, архитектурно-планировочным решениям и инженерному оборудованию ДМ.

1.3. Проектирование ДМ должно вестись в соответствии с положениями настоящих Рекомендаций, а также требованиями нормативно-методических документов в строительстве, действующих на территории г. Москвы.

2. НОРМАТИВНЫЕ ССЫЛКИ

В настоящих Рекомендациях приведены ссылки на следующие нормативно-методические документы:

СНиП 2.08.02-89* «Общественные здания и сооружения»;

СНиП 21-01-97* «Пожарная безопасность зданий и сооружений»;

СНиП 2.07.01-89* «Градостроительство. Планировка и застройка городских и сельских поселений»;

СНиП 35-01-2001 «Доступность зданий и сооружений для маломобильных групп населения»;

НПБ 88-2001 «Установки пожаротушения и сигнализации. Нормы и правила проектирования»;

СНиП 2.04.05-91* «Отопление, вентиляция и кондиционирование воздуха»;

СНиП 2.04.01-85* «Внутренний водопровод и канализация зданий»;

СП 2.2.1/2.1.1.1076-01 «Гигиенические требования к инсоляции и солнцезащите помещений жилых и общественных зданий и территорий»;

СП 2.2.1/2.1.1.1278-03 «Гигиенические требования к естественному, искусственному и совмещенному освещению в жилых и общественных зданиях»;

СП 2.1.2.1188-03 «Плавательные бассейны. Гигиенические требования к устройству, эксплуатации и качеству воды. Контроль качества»;

СН 441-72* «Указания по проектированию ограждений площадок и участков предприятий, зданий и сооружений»;

МГСН 1.01-99 «Нормы и правила проектирования планировки и застройки г. Москвы»;

МГСН 2.01-99 «Энергосбережение в зданиях»;

МГСН 4.03-94 «Дома-интернаты для инвалидов и престарелых»;

МГСН 4.12-97 «Лечебно-профилактические учреждения»;

«Рекомендации по проектированию домов сестринского ухода», М., 1997 г.;

Пособие к МГСН 4.02-94 «Дома-интернаты для инвалидов и престарелых»;

Пособие по проектированию учреждений здравоохранения к СНиП 2.08.02-89*;

«Пособия по проектированию окружающей среды для людей с физическими ограничениями», М, 1997 г., Выпуск 2;

«Проектирование бассейнов». Справочное пособие к СНиП 2.08.02-89*, М, Стройиздат, 1991 г.

3. ОБЩИЕ ПОЛОЖЕНИЯ

3.1 Основными задачами ДМ являются обеспечение качества и доступности различных видов помощи инвалидам и лицам пожилого и старческого возраста, проживающим в ДМ и страдающим различными хроническими заболеваниями:

- социально-бытовое обслуживание проживающих;

- оказание медико-социальной помощи;

- обеспечение социально-бытовой и психологической приспособляемости лиц, лишенных возможности или с ограниченной возможностью передвижения, включая использующих механические средства передвижения;

- оказание психологической и юридической помощи проживающим и их родственникам;

- предоставление возможности трудовой занятости.

3.2. В соответствии с задачами ДМ осуществляет:

- прием и размещение по отделениям инвалидов и престарелых граждан с учетом их заболевания, тяжести состояния, интеллектуального дефекта, возраста и возможности их адаптации к новой обстановке;

- квалифицированное медицинское обслуживание и реабилитацию, своевременную диагностику осложнений и обострений хронических заболеваний;

- организацию консультативной медицинской помощи совместно с лечебно-профилактическими учреждениями и устройство, при необходимости, в соответствующее лечебно-профилактическое учреждение;

- организацию рационального, в том числе диетического, питания с учетом состояния здоровья проживающих;

- социально-бытовое обслуживание;

- оказание психологической помощи;

- проведение санитарно-гигиенических и противоэпидемических мероприятий;

- организацию в пределах палаты или мастерской трудового процесса с применением технических средств;

- проведение культурно-массовой работы (совместно с учреждениями культуры).

3.3. Контингент проживающих в ДМ представлен группами лиц, нуждающимися в постоянной бытовой помощи и уходе:

- лицами пожилого и старческого возраста с ослабленным состоянием здоровья;

- лицами среднего и старшего возраста, находящимися на постельном режиме или передвигающимися с помощью механических приспособлений;

- лицами старше 18 лет с тяжелыми хроническими соматическими заболеваниями.

3.4. ДМ должен быть рассчитан на использование внутренней инфраструктуры. Проживающие в нем лица не могут посещать магазины, отделения сберегательного банка, почтовые отделения и т.п. Функции этих учреждений должны быть обеспечены в ДМ за счет соответственной расширенной номенклатуры служб и помещений.

3.5. Вместимость ДМ принимается не более 100 мест.

3.6. Состав и площади помещений ДМ должны определяться в соответствии с Разделом 5 настоящих Рекомендаций и уточняются в каждом конкретном случае заданием на проектирование.

4. ПОЛОЖЕНИЯ ПО РАЗМЕЩЕНИЮ, УЧАСТКУ И ТЕРРИТОРИИ

4.1. ДМ следует размещать в селитебной или зеленой зонах на земельных участках, наиболее благоприятных по санитарно-гигиеническим условиям.

4.2. Здания ДМ следует размещать на обособленных земельных участках.

4.3. Площадь участка ДМ принимается из расчета 60 м2 на 1 проживающего в соответствии с положениями МГСН 4.03-94.

4.4. В составе территории участка ДМ предусматриваются следующие зоны:

- приемного отделения;

- проживания;

- медицинского изолятора;

- хозяйственная.

4.5. Размеры и состав зон участка уточняются заданием на проектирование или проектом с учетом положений настоящего раздела в зависимости от объемно-планировочного решения ДМ.

4.6. В зоне проживания рекомендуется предусматривать прогулочную территорию, оборудованную мощеными площадками для отдыха с теневыми навесами и скамейками, асфальтированными дорожками для прогулок с использованием механических средств передвижения.

4.7. Приемное отделение и медицинский изолятор должны иметь самостоятельные выходы на участок и подъездные пути, обеспечивающие возможность проезда специального медицинского транспорта.

4.8. Хозяйственная зона должна размещаться со стороны производственных помещений пищеблока. На ее территории допускается размещать гараж с мастерскими, навесы для инвентаря и оборудования, мусоросборники и т.п. Гараж рекомендуется проектировать на 3 машины (1 - легковая, 1 - грузовая типа «газель», I - автобус). Автобус должен быть приспособлен к перевозке инвалидов, использующих кресла-коляски.

4.9. Площадь озеленения территории участка должна составлять не менее 45 % от общей площади участка в соответствии с МГСН 4.03-94. Озеленение участка включает групповые и рядовые посадки деревьев и кустарников, декоративные растения, цветники и газоны.

4.10. Земельный участок должен иметь ограждение в соответствии с требованиями СН 441-72*.

4.11. Участок должен быть освещен в соответствии с требованиями СНиП 23-05-95.

4.12. На участок должно быть предусмотрено не менее двух въездов (один хозяйственный); планировка участка должна обеспечивать подъезды пожарных машин ко всем зданиям и блокам, а также объезды вокруг них в соответствии с СНиП 21-01-97*; подъезды должны иметь твердое покрытие и ширину не менее 3 м.

4.13. При центральном въезде на территорию следует предусматривать проходную.

4.14. Для автомашин сотрудников ДМ следует предусматривать открытую стоянку в соответствии с требованиями МГСН 1.01-99.

5. ПОЛОЖЕНИЯ ПО АРХИТЕКТУРНО-ПЛАНИРОВОЧНЫМ РЕШЕНИЯМ И ИНЖЕНЕРНОМУ ОБОРУДОВАНИЮ

Общие требования.

5.1. В состав ДМ входят следующие функциональные группы помещений:

- вестибюльная;

- приемного отделения;

- проживания;

- лечебно-профилактическая;

- досуговая;

- медицинского изолятора;

- питания;

- административная;

- хозяйственного обслуживания.

Архитектурно-планировочные решения ДМ должны учитывать требования функционального зонирования помещений с учетом осуществляемой в них деятельности (Рис. 1.).

5.2. Основными функциональными требованиями к планировочной организации здания ДМ являются требования обособления, изоляции и, одновременно, удобных технологических и коммуникационных связей между отдельными группами помещений. Допускается предусматривать проходы через отдельные функциональные группы помещений, исключая жилую.

Рис. 1. Схема функциональной взаимосвязи групп помещений.

1. Вестибюльная группа помещений. 2. Помещения приемного отделения.
3. Помещения проживания. .4. Помещения питания
5. Лечебно-профилактические помещения. 6. Культурно-досуговые помещения
7. Помещения медицинского изолятора 8. Административно-бытовые
помещения.

Условные обозначения.

- Коммуникационное пространство

Обозначение связей:

- Для проживания в ДМ

- Для посетителей

- Служебные

5.3. При проектировании помещений ДМ рекомендуется пользоваться планировочными схемами, приведенными в Приложениях настоящих Рекомендаций. Рекомендуемые площади отдельных помещений в зависимости от конкретных планировочных и конструктивных решений могут быть изменены (уменьшены или увеличены) не более чем на 15 %.

5.4. Функциональные группы помещений могут размещаться в едином блоке либо в отдельных корпусах, или блоках, соединенных отапливаемыми переходами. В зданиях ДМ должны предусматриваться пожарные отсеки площадью не более 5000 м2, разделяемые противопожарными стенами 1-го типа (в соответствии с требованиями СНиП 21-01-97*). Из каждого пожарного отсека должно быть предусмотрено не менее двух эвакуационных выходов, один из выходов допускается предусматривать в соседний отсек.

5.5. Здания ДМ не должны превышать 3 этажей в соответствии с требованиями МГСН 4.03-94.

5.6. Объемно-планировочная структура зданий должна обеспечивать оптимальные условия осуществления протекающих в нем функциональных процессов, отражать специфику учреждения и обеспечивать соответствующие условия эксплуатации и необходимую связь с участком.

5.7. Эргономические параметры зданий ДМ (ширина проходов, коридоров, дверных проемов, лестниц, пандусов, необходимые размеры разворотов, поворотов, отсутствие порогов и т.п.), необходимые для жизнеобеспечения инвалидов и престарелых, передвигающихся с помощью различных механических приспособлений (коляски, «ходунки» и т.п.), принимаются в соответствии с требованиями СНиП 35-01-2001 и Пособия по проектированию окружающей среды для людей с физическими ограничениями (Выпуск 2).

На путях эвакуации инвалидов и престарелых следует предусматривать зоны отдыха, а также устройство поручней на высоте не более 1 м. Общая ширина коридора и зоны отдыха должна быть не менее 3,2 м.

Ширину коридоров в группах помещений административно-бытового, методического и хозяйственного назначения следует принимать не более 1,4 м.

Ширину дверного проема в помещениях для инвалидов и престарелых следует принимать не менее 1,1 м (в соответствии с положениями «Рекомендации по проектированию домов сестринского ухода»), в административно-хозяйственных помещениях - не менее 0,9 м.

Для удобства передвижения в помещениях для инвалидов и престарелых рекомендуется исключить устройство порогов.

Ширина лестничных маршей должна быть не менее 1,35 м (в соответствии с положениями «Рекомендации по проектированию домов сестринского ухода»).

5.8. Высота наземных этажей здания ДМ предусматривается 3,3 м (от пола до пола вышележащего этажа). Высота зрительного зала принимается по техническим требованиям, высота бассейна - 6 м (до низа несущих конструкций).

5.9. Специальные устройства и приспособления для обеспечения инвалидам и престарелым возможности передвижения, а также пользования специальными приборами и оборудованием рекомендуется проектировать в соответствии с требованиями СНиП 35-01-2001 и Пособия по проектированию окружающей среды для людей с физическими ограничениями (Выпуск 2).

Специальные устройства и приспособления могут быть как стационарные, так и съемные и передвижные.

Специальные приспособления для горизонтальных и вертикальных передвижений инвалидов с помощью персонала или без него обычно применяются для доставки обслуживаемого в процедурные кабинеты, погружения его в ванну, помещения на кушетку и т.п.

5.10. Внутренняя отделка помещений ДМ должна быть выполнена из материалов, допускающих влажную уборку, а также применение дезинфицирующих средств и разрешенных для применения органами Госсанэпиднадзора Минздрава РФ.

5.11. Естественное, искусственное и совмещенное освещение в помещениях следует проектировать в соответствии с требованиями СП 2.2.1/2.1.1.1278-03.

5.12. Допускается не предусматривать естественного освещения:

- в зрительном зале;

- в обеденных залах;

- в санузлах и ванных комнатах для престарелых и инвалидов, санитарных узлах для персонала, комнатах личной гигиены женщин (при соблюдении необходимой кратности обмена воздуха);

- в радиоузле;

- в столовой для персонала;

- в кладовых инвентаря, комнатах хранения предметов уборки;

- в помещениях технических служб.

5.13. Санитарные узлы и ванные комнаты для престарелых и инвалидов в ДМ следует проектировать с учетом положений СНиП 35-01-2001 и «Рекомендаций по проектированию домов сестринского ухода».

5.14. Внутренний водопровод и канализацию следует проектировать в соответствии с СНиП 2.04.01-85*.

5.15. В комнатах хранения уборочного инвентаря следует предусматривать умывальник и слив.

5.16. Инсоляцию помещений, в которых находятся инвалиды и престарелые, следует предусматривать в соответствии с требованиями СП 2.2.1/2.1.1.1076-01.

5.17. Отопление и вентиляцию зданий следует проектировать в соответствии с требованиями СНиП 2.04.05-91* и МГСН 2.01-99.

5.18. Энергоснабжение, электрооборудование, электрическое освещение здания и наружное освещение территории следует предусматривать в соответствии с требованиями СП 2.2.1/2.1.1.1278-03, МГСН 4.03-94, МГСН 2.01-99.

5.19. Проектирование здания должно осуществляться с учетом принципов максимального энергосбережения в соответствии с требованиями МГСН 2.01-99.

5.20. Здания следует проектировать не менее II степени огнестойкости в соответствии с СНиП 21-01-97*.

5.21. В зданиях должна быть предусмотрена автоматическая пожарная сигнализация в соответствии с требованиями НПБ 88-2001. Перечень помещений, в которых необходимо предусматривать автоматическую пожарную сигнализацию, следует определять в соответствии с МГСН 4.03-94. Сигнал о срабатывании системы АПС (автоматической пожарной сигнализации) выводится в помещение с круглосуточным пребыванием персонала.

5.22. На путях эвакуации из здания должно быть предусмотрено аварийное и эвакуационное освещение, проектируемое в соответствии с требованиями СНиП 21-01-97* и СНиП 23-05-95.

Вестибюльная группа помещений.

5.23. Рекомендуемые состав и площади помещений вестибюльной группы ДМ приведены в таблице 5.1.

5.24. В составе помещений вестибюльной группы рекомендуется предусматривать гардероб для верхней одежды посетителей, в состав оборудования которого включены вешалки консольного типа.

5.25. Гардероб для верхней одежды персонала рекомендуется предусматривать в отдельном помещении при вестибюле.

5.26. В состав вестибюльной группы рекомендуется включать помещение справочной службы.

5.27. При вестибюльной группе рекомендуется предусматривать киоск союзпечати, почтовое отделение, помещение продовольственного и промтоварного магазина с подсобными помещениями (в подсобном помещении для хранения продуктов рекомендуется устанавливать бытовые или магазинные холодильники), помещение отделения сбербанка с сейфовым хранилищем.

5.28. В состав вестибюльной группы следует включать пост дежурного администратора с помещением для отдыха.

5.29. Входы в вестибюль и служебные входы в здание следует оборудовать тамбурами в соответствии с требованиями СНиП 35-01-2001.

5.30. Входы в здание следует оборудовать пандусами с продольным уклоном не более 1:10 при ширине не менее 1,8 м.

Таблица 5.1.

Рекомендуемые состав и площади помещений вестибюльной группы.

№ № п.п.

Наименование помещений

Площадь помещений, м2

Примечание

Ha 1 место

Всего

1

2

3

4

5

1.

Вестибюль

0,5

-

С учетом численности персонала и посетителей, а также организацией поста дежурного администратора

2.

Гардероб для верхней одежды посетителей

0,1

-

 

3.

Гардероб для верхней одежды персонала

-

10

4.

Справочная

-

4

5.

Киоск союзпечати

 

2

6.

Почтовое отделение

-

8

7.

Магазин продовольственных и промышленных товаров с подсобными помещениями

-

18+4+4

Приложение, Рис. П.1.

8.

Помещение отделения сбербанка с сейфовым хранилищем

 

8+2

Приложение, Рис. П.2.

9.

Помещение отдыха дежурного администратора

-

10

10.

Санитарный узел с умывальником в шлюзе для персонала и посетителей

-

3

11.

Комната хранения предметов уборки

-

4

Группа помещений приемного отделения.

5.31. Рекомендуемые состав и площади группы помещений приемного отделения ДМ приведены в таблице 5.2.

5.32. Назначение группы помещений приемного отделения - проведение первичной медицинской и психолого-медицинской диагностики, а также выполнение функций карантинного отделения.

5.33. Приемное отделение следует размещать на первом этаже здания ДМ.

5.34. Приемное отделение рассчитано на одновременное пребывание 5 чел. Срок пребывания в приемном отделении - не менее 14 дней.

5.35. Карантинные палаты приемного отделения рекомендуется проектировать одноместными с санитарным узлом. В состав оборудования санузла рекомендуется включать умывальник и унитаз.

5.36. Питание пациентов карантинного отделения следует организовывать непосредственно в палатах.

Таблица 5.2.

Рекомендуемые состав и площади помещений приемного отделения.

№ № п.п.

Наименование помещений

Площадь помещений, м2

Примечания

1

2

3

4

1.

Кабинет заведующего приемным отделением

8

 

2.

Регистратура

6

 

3.

Ожидальная

8

 

4.

Кабинет консультативного приема

12

 

5.

Кладовая временного хранения вещей поступающих

5

 

6.

Ванная комната:

 

 

- раздевальная

6

 

- ванная с душем и подъемником

14

 

- одевальная

6

 

7.

Процедурная

12

 

8.

Карантинная палата с санузлом

10+3,5

Приложение, Рис. П.3.

9.

Комната дежурной медицинской сестры

10

 

10.

Сестринская

10

 

11.

Буфетная

6

 

12.

Моечная посуды

4

 

13.

Санузел персонала с умывальником

2

 

14.

Комната хранения предметов уборки

4

 

Помещения проживания.

5.37. Рекомендуемые состав и площади помещений проживания приведены в таблице 5.3.

5.38. Помещения проживания рекомендуется проектировать в виде изолированных отделений на 25 мест каждое с жилыми ячейками и набором обслуживающих помещений и кабинетов. Часть помещений проживания может организовываться на коммерческой основе.

5.39. Соотношение жилых ячеек различной основы и вместимости определяется заданием на проектирование. Оптимальное соотношение ячеек по вместимости: 50 % - одноместных, 50 % - двухместных.

5.40. Жилые ячейки следует проектировать с передней, оборудованной встроенными шкафами-купе, и с санитарным узлом (со входом из передней), в состав оборудования которого следует включать унитаз и умывальник (см. Рис. П.4., П.5.).

5.41. Основным отличием помещений проживания на коммерческой основе является повышенная комфортность, увеличение площади жилых комнат и номенклатуры их оборудования, объема индивидуальных услуг обслуживания (при необходимости организация круглосуточного дежурства сиделки, индивидуального сопровождения на прогулки и т.п.).

5.42. Жилые ячейки коммерческого отделения проектируются, как правило, одноместными (однокомнатными) и «семейными» двухместными (двухкомнатными). Оптимальное соотношение ячеек определяется заданием на проектирование (см. Рис. П.6., П.7.).

5.43. Одноместная жилая ячейка коммерческого отделения включает в свой состав жилую комнату, переднюю со встроенными шкафами и санитарным узлом, в оборудование которого входят: унитаз, умывальник, душ с поворотным креслом.

5.44. «Семейная» жилая ячейка коммерческого отделения включает в свой состав спальную комнату, гостиную, переднюю со встроенными шкафами и санитарным узлом, в оборудование которого входят: унитаз, умывальник, душ с поворотным креслом.

5.45. В жилых ячейках коммерческого отделения предусматривается возможность (в случае необходимости) организации поста круглосуточного дежурства сиделки.

5.46. Жилые комнаты следует проектировать с открытыми лоджиями глубиной не менее 1,4 м (для возможности разворота кресла-коляски), рассматривая одновременно их как противопожарные отсеки для отстоя людей при пожаре.

5.47. В составе оборудования жилых комнат следует предусматривать у каждой кровати установку электрощитка с двухсторонним сигнально-переговорным устройством, звуко-световой сигнализацией и головным телефоном радиотрансляционной сети.

5.48. При проектировании жилых комнат следует предусмотреть возможность оборудования их как функциональными кроватями (для людей с полной потерей подвижности), так и обычными кроватями (для людей с частичной потерей подвижности).

5.49. Электротехническое и сантехническое оборудование следует размещать в соответствии с требованиями СНиП 35-01-2001.

5.50. В состав оборудования жилых комнат следует включать телевизор.

В коммерческом отделении состав оборудования жилых комнат определяется заданием на проектирование. Дополнительно может включаться мягкая мебель, стенка, холодильник, городской телефон, видеомагнитофон.

5.51. В отделениях всех типов следует предусматривать ванное помещение (см. Рис. П.9.), в состав которого входят:

- раздевальная со скамейками, вешалкой для одежды, стеллажом для чистого и баком для грязного белья, местом для каталки и шкафом для моющих средств;

- ванная комната, в состав оборудования которой рекомендуется включать стационарную ванну с подъемником, передвижную ванну-каталку с гибким душем, сливной трап в полу.

5.52. В состав отделений всех типов следует включать помещение для дневного пребывания (см. Рис. П.8.) с мягкой мебелью, телевизором и столом для настольных игр, интерьер и оборудование которого должны быть максимально приближены к домашним.

5.53. Питание проживающих в отделениях всех типов предусматривается либо в жилых комнатах, либо в столовой при отделении. Питание обычно организуется в одну смену.

Количество посадочных мест в столовой уточняется задание на проектирование. Площадь обеденного зала отделения следует принимать из расчета 1,2 м2 на одно посадочное место. При обеденном зале следует предусмотреть буфетную и моечную столовой посуды.

В коммерческом отделении дополнительно может предусматриваться кафе на 10-12 мест.

5.54. В состав жилых ячеек всех типов в целях оказания повседневной медицинской помощи следует включать следующие специализированные кабинеты: кабинет врача; процедурная-кабинет медицинской сестры; кабинет психотерапевта; кабинет массажа на 1 место; кабинет индивидуальных занятий ЛФК; сестринская; клизменная.

5.55. Все специализированные кабинеты оборудованы умывальниками.

Таблица 5.3.

Рекомендуемые состав и площади помещений проживания (отделения на 25 мест).

№ № п.п.

Наименование помещений

Площадь помещений
м2

Примечания

1

2

3

4

1.

Жилая ячейка на 1 место с жилой комнатой, передней и санитарным узлом

14+3+3,5

Приложение, Рис. П.4.

2.

Жилая ячейка на 2 места с жилой комнатой, передней и санитарным узлом

17+4,5+3,5

Приложение, Рис. П.5.

3.

Жилая ячейка на 1 место в коммерческом отделении с жилой комнатой передней и санитарным узлом

18+4,5+4,5

Приложение, Рис. П.6.

4.

Жилая ячейка «семейная» в коммерческом отделении со спальной, гостиной, передней и санитарным узлом

15+16+8+7

Приложение, Рис. П.7.

5.

Помещение дневного пребывания

50

Приложение, Рис. П.8.

6.

Ванная комната с раздевальной

14+10

Приложение, Рис. П.9.

7.

Столовая

30

 

8.

Буфетная

8

 

9.

Моечная столовой посуды

6

 

10.

Кафе

24

В коммерческом отделении

11.

Кабинет заведующего отделением

8

 

12.

Кабинет врача

12

 

13.

Кабинет психотерапевта

12

 

14.

Кабинет массажа на 1 место

12

 

15.

Кабинет индивидуальных занятий ЛФК

12

 

16.

Процедурная-кабинет медицинской сестры с местом для хранения медикаментов

12

 

17.

Клизменная со шлюзом

10

 

18.

Сестринская

20

 

19.

Помещение для хранения кресел-колясок

8

 

20.

Кладовые для хранения:

 

 

- чистого белья

4

 

- грязного белья

6

 

21.

Комната для отдыха персонала с гардеробной, душевой и уборной

15

 

22.

Комната личной гигиены для женщин

4

 

23.

Санузел для посетителей с умывальником

3

 

24.

Комната хранения предметов уборки

4

 

Лечебно-профилактические помещения.

5.56. Рекомендуемые состав и площади лечебно-профилактических помещений приведены в таблице 5.4. Состав, количество кабинетов и их площади должны уточняться заданием на проектирование в каждом конкретном случае.

5.57. Лечебно-профилактическая помощь в ДМ направлена на обеспечение комплексности профилактических, лечебных, психологических и других медицинских услуг, предупреждение обострения хронических заболеваний, проведение симптоматического лечения, обеспечение постоянного наблюдения за состоянием здоровья престарелых и инвалидов.

5.58. Учитывая специфику контингента ДМ, номенклатура медицинских помещений должна быть достаточно расширенной и включать кабинеты специалистов различного профиля. Медицинские помещения следует проектировать с учетом положений МГСН 4.03-94, МГСН 4.12-97, Пособия по проектированию учреждений здравоохранения к СНиП 2.08.02-89*.

5.59. В рамках медицинского обслуживания в ДМ осуществляют также медицинскую реабилитацию с элементами трудотерапии. В соответствии с трудовой рекомендацией ВТЭК или заключением врача проживающие могут заниматься трудовой деятельностью, которая осуществляется как в мастерских трудотерапии, так и непосредственно в помещениях проживания.

Состав и площади мастерских в каждом конкретном случае определяются заданием на проектирование. Планировка помещений должна учитывать возможность перепрофилирования помещения в связи с изменением контингента проживающих или конъюнктуры. Рекомендуемая вместимость мастерских трудотерапии - 4-  чел.

5.60. В состав лечебно-профилактических помещений рекомендуется включать бассейн, основное назначение которого - развитие моторики и общее укрепление организма.

Проектирование бассейна следует осуществлять в соответствии с положениями справочного пособия «Проектирование бассейнов» к СНиП 2.08.02-89*, СНиП 35-01-2001, СП 2.1.2.1188-03 и Пособия по проектированию окружающей среды для людей с физическими ограничениями (Выпуск 2).

Рекомендуемые размеры ванны бассейна - 6´10 м, глубина от 0,9 м - в мелкой части и 1,25 м - в глубокой. Одновременная загрузка бассейна - 6 чел. Бассейн следует оборудовать пандусом и подъемным устройством для опускания в воду.

5.61. Планировочная схема раздевальной при бассейне, (с учетом проживающих, использующих механические средства передвижения) приведена в Приложении (Рис. П.17.). При организации отдельно женских и мужских сеансов возможно проектирование одной раздевальной на 6 чел.

5.62. Рекомендуется предусматривать баню сухого жара. Состав помещений и вместимость уточняются заданием на проектирование.

Таблица 5.4.

Рекомендуемые состав и площади лечебно-профилактических помещений.

№ № п.п.

Наименование помещений

Площадь помещений, м2

Примечания

1

2

3

4

1.

Кабинет заместителя директора по медицинской работе

12

 

2.

Кабинет консультативного приема

12

 

3.

Кабинет логопеда

12

 

4.

Кабинет гинеколога, уролога

21

Приложение, Рис. П.10.

5.

Кабинет врача ЛФК

12

 

6.

Кабинет физиотерапевта

12

 

7.

Кабинет невропатолога

12

 

8.

Кабинет стоматолога

17

Приложение, Рис. П.11.

9.

Кабинет геронтолога

10

 

10.

Кабинет офтальмолога с темной комнатой

18+8

Приложение, Рис. П.12.

11.

Кабинет старшей медицинской сестры

10

 

12.

Аптечная комната

8+4

 

13.

Кабинет медицинской сестры с процедурной

18

 

14.

Фитокабинет с кладовой

10+3

 

15.

Ингаляторий на 3 места со стерилизационной

12+3

Приложение, Рис. П.13.

16.

Кабинет физиотерапии

24

Приложение, Рис. П.14.

17.

Кабинет оксигенотерапии

14

 

18.

Кабинет озокерито-парафино-лечения, горячих укутываний с помещением подогрева

20+6

Приложение, Рис. П.15.

19.

Кабинет механотерапии

18

 

20.

Кабинет электросна

12

Приложение, Рис. П.16.

21.

Мастерские трудотерапии

60´3

 

22.

Помещение для хранения переносной аппаратуры для трудотерапии для лиц, прикованных к постели

12

 

23.

Сестринская

18

 

24.

Комната мастеров по трудотерапии

18

 

25.

Бассейн с ванной 6´10 м

135

 

26.

Раздевальная с душевыми и санузлом

16+17+3

Приложение, Рис. П.17.

27.

Комната инструкторов с санитарным узлом

10+3

В состав санузла входят: унитаз, душ, умывальник

28.

Комната медсестры

10

Должны располагаться смежно и иметь выход на обходную дорожку

29.

Лаборатория анализа воды

8

30.

Узел управления

6

31.

Помещение для хранения химических реактивов

4

 

32.

Реагентная

4

 

33.

Блок бани сухого жара:

 

 

- камера сухого жара

10

 

- предбанник с душем

10

 

- санузел с умывальником

3,5

 

- раздевальная

12

 

- комната отдыха

12

 

- кладовая инвентаря

4

 

34.

Санузел для персонала с умывальником

3

 

35.

Комната гигиены для женщин

4

 

36.

Комната хранения предметов уборки

4

 

37.

Инвентарная

24

 

Досуговые помещения.

5.63. Состав досуговых помещений ДМ определяется заданием на проектирование. Рекомендуемые состав и площади досуговых помещений приведены в таблице 5.5.

5.64. Актовый зал рекомендуется проектировать на 80 % вместимости. В актовом зале должны быть предусмотрены места для людей, использующих кресла-коляски, из расчета 30 % от вместимости.

5.65. При актовом зале рекомендуется предусматривать фойе, которое используется как холл для отдыха, выставочный зал и т.п.

5.66. В состав группы досуговых помещений рекомендуется включать культовые помещения для различных вероисповеданий.

Таблица 5.5.

Рекомендуемые состав и площади досуговых помещений.

№ № п.п.

Наименование помещений

Площадь помещений, м2

Примечания

1

2

3

4

1.

Актовый зал на 80 мест

130

Приложение, Рис. П.18.

2.

Эстрада при зале

19

Глубина эстрады 3,5-4 м

3.

Кинопроекционная с перемоточной и радиоузлом

13

 

4.

Фойе

90

 

5.

Санитарные узлы с умывальником в шлюзе при фойе

18´2

 

6.

Помещение для артистов

9´2

 

7.

Фильмовидеотека

8

 

8.

Помещение пожарного поста

10

 

9.

Кладовая мебели и реквизита

20

 

10.

Кладовая аппаратуры

10

 

11.

Библиотека с читальным залом и хранилищем

120

 

12.

Культовые помещения

22´3

Уточняются заданием на проектирование

13.

Санузел персонала с умывальником

3

 

14.

Комната хранения предметов уборки

4

 

Помещения медицинского изолятора.

5.67. Рекомендуемые состав и площади помещений медицинского изолятора приведены в таблице 5.6.

5.68. Вместимость изолятора следует предусматривать из расчета 5 - 10 % от числа проживающих.

5.69. Помещения изолятора соединяются с остальными помещениями ДМ через тамбур-шлюз, в котором следует размещать умывальник и вешалку для смены халатов.

5.70. В состав помещений изолятора следует включать изоляционные палаты на 1 и 2 чел. Количество палат той или иной вместимости определяется в каждом конкретном случае заданием на проектирование в соответствие с п. 5.68. настоящих Рекомендаций.

5.71. Между изоляционными палатами и коридором следует предусматривать глухие (не открывающиеся) окна для наблюдения за пациентами.

5.72. Питание больных, находящихся в изоляторе, предусматривается непосредственно в палатах. Для организации питания в состав помещений следует включать буфетную и моечную посуды.

5.73. Все изоляционные палаты должны быть оборудованы санитарными узлами (умывальник, унитаз).

5.74. В помещении изолятора следует предусматривать ванную комнату, в состав которой входят:

- шлюз со скамейками для раздевания, вешалкой для белья и стеллажом для чистого белья;

- ванная комната, в состав оборудования которой рекомендуется включать стационарную ванну с подъемником, передвижную ванну-каталку с гибким душем, стеллаж с моющими средствами.

5.75. В состав помещений медицинского изолятора следует включать помещение для временного хранения трупов с холодильной установкой.

Таблица 5.6.

Рекомендуемый состав в площади помещений медицинского изолятора.

№ № п.п.

Наименование помещений

Площадь помещений, м2

Примечания

1

2

3

4

1.

Изоляционная палата на 1 место с санузлом

10+3,5

Приложение, Рис. П.3.

2.

Изоляционная палата на 2 места с санузлом

14+3,5

Приложение, Рис. П.19.

3.

Ванная комната с раздевальной

14+10

Приложение, Рис. П.9.

4.

Процедурная

8

 

5.

Помещение для хранения переносной аппаратуры

12

 

6.

Кабинет врача, медицинской сестры

12

 

8.

Буфетная

8

 

9.

Моечная посуды

6

 

10.

Кладовая со шкафами для чистого и грязного белья

6

 

11.

Помещение для хранения кресел-колясок

10

 

12.

Помещение для временного хранения трупов

12

Рекомендуется размещать в подвале

13.

Комната хранения уборочного инвентаря

4

 

Помещения питания.

5.76. Питание проживающих в ДМ организуется в столовых соответствующих отделений или непосредственно в жилых комнатах.

5.77. Для обслуживания отделений при помещениях кухни следует предусматривать раздаточную с удобным доступом к внутренним коммуникационным связям (коридору для доставки пищи в приемное отделение и изолятор, находящиеся на первом этаже, и лифту для подъема пищи).

5.78. В производственные помещения кухни должен предусматриваться отдельный вход.

5.79. Производственные помещения кухни следует рассчитывать на работу на сырье. Кроме питания проживающих, помещения кухни должны обеспечивать питание персонала.

5.80. Для питания персонала при помещениях кухни предусматривается обеденный зал самообслуживания (или буфет) из расчета 1,0 м2 на 1 посадочное место. Количество мест определяется заданием на проектирование, исходя из количества питающихся в учреждении, продолжительности обеденного времени и количества смен.

5.81. Учитывая специфику контингента проживающих в ДМ в состав производственных помещений кухни следует включать кабинет диетсестры.

5.82. Рекомендуемые состав и площади производственных помещений кухни приведены в таблице 5.7.

Таблица 5.7.

Рекомендуемый состав и площади производственных помещений кухни

№ №
п.п.

Наименование помещений

Площадь помещений, м2

Примечания

1

2

3

4

1.

Горячий цех

70

 

2.

Холодный цех

 

3.

Рыбный цех

24

 

4.

Мясной цех

 

5.

Хлеборезка, хранение хлеба

8

 

6.

Цех мучных изделий

14

 

7.

Раздаточная

18

 

8.

Сервизная

8

 

9.

Моечная кухонной посуды

10

 

10.

Моечная столовой посуды

18

 

11.

Охлаждаемая камера для хранения:

 

 

- молочных продуктов

8

 

- рыбы, мяса

8

 

- яиц

6

 

12.

Кладовая сухих продуктов

6

 

13.

Кладовая овощей

12

 

14.

Кладовая суточного запаса

8

 

15.

Помещение первичной обработки овощей

8

 

16.

Загрузочная, кладовая тары

14

 

17.

Камера утилизации отходов с техническим сливом

4

 

18.

Комната заведующего производством

8

 

19.

Кабинет диетсестры

8

 

20.

Бельевая, гардеробная персонала, душевая, уборная

18

 

21.

Комната хранения предметов уборки

4

 

Административно-хозяйственные помещения.

5.83. Рекомендуемые состав и площади административно-хозяйственных помещений приведены в таблице 5.8.

5.84. При необходимости допускается организация в ДМ дезкамерного блока.

5.85. Кладовую чистого белья с починкой и кладовую грязного белья рекомендуется располагать рядом с прачечной.

5.86. Прачечная, дезкамера, кладовая сезонной одежды и инвентарные могут располагаться в подвальном помещении.

5.87. Помещение кладовой сезонной одежды и обуви следует оборудовать принудительной вентиляцией.

Таблица 5.8.

Рекомендуемые состав и площади помещений административно-бытового обслуживания.

№ № п.п.

Наименование помещений.

Площадь помещений, м2

Примечания.

1

2

3

4

1.

Кабинет директора

36

 

2.

Приемная

18

Смежно с кабинетом директора

3.

Кабинет заместителя директора по лечебной части

12

 

4.

Канцелярия

12

 

5.

Кабинет заместителя директора по хозяйственной части

16

 

6.

Помещение дежурного персонала технического обслуживания

14

 

7.

Бухгалтерия с кассой

18+4

 

8.

Комната сестры-хозяйки

12

 

9.

Комната психологической разгрузки персонала

18

 

10.

Комната отдыха персонала

36

 

11.

Компьютерный центр с архивом

24+10

 

12.

Помещение пожарного поста

12

 

13.

Кладовая чистого белья

20

 

14.

Кладовая грязного белья

18

 

15.

Прачечная

22

 

16.

Кладовая сезонной одежды и обуви

22

 

17.

Инвентарные

40

 

18.

Санитарные узлы для мужчин и женщин с умывальниками в шлюзе (для персонала)

3´2

 

19.

Кабины личной гигиены для женщин (для персонала)

3

 

20.

Комната хранения уборочного инвентаря

4

 

ПРИЛОЖЕНИЯ

ЭКСПЛИКАЦИЯ ОБОРУДОВАНИЯ

1 - торговое помещение

1. Прилавок - холодильник

2. Прилавок с кассовым аппаратом

3. Прилавок - витрина

4. Откидная часть прилавка

5. Стеллаж для товаров

6. Место для инвалидной коляски

II - подсобные помещения

7. Холодильник

8. Стеллаж для хранения товаров

Рис. П.1. Магазин продовольственных и промышленных товаров.

Разрез А-А

Разрез Б-Б

ЭКСПЛИКАЦИЯ ОБОРУДОВАНИЯ

1 - помещение для посетителей

II - помещение оператора

 

1. Барьер

4. Рабочий стол

2. Стеклянное ограждение

5. Компьютер

3. Место для инвалидной коляски

6. Рабочее место

III - сейфовое хранилище

 

 

 

 

 

Рис. П.2. Помещения отделения сбербанка.

ЭКСПЛИКАЦИЯ ОБОРУДОВАНИЯ

1 - палата

1. Кровать

2. Тумбочка

3. Место для инвалидной коляски

4. Место для каталки

II - санитарный узел

5. Раковина

6. Унитаз

7. Место для инвалидной коляски

III - тамбур

Рис. П.3. Карантинная (изоляционная) палата на 1 место с санитарным узлом.

ЭКСПЛИКАЦИЯ ОБОРУДОВАНИЯ

1 -жилая комната

1. Кровать

2. Тумбочка

3. Шкаф-купе

4. Стол круглый

5. Кресло жесткое

6. Телевизор

7. Место для инвалидной коляски

II - передняя

8. Вешалка для верхней одежды

9. Зеркало

III - санитарный узел

10. Унитаз с поручнями

11. Раковина

12. Место для инвалидной коляски

Рис. П.4. Жилая ячейка на 1 место с передней и санитарным узлом.

ЭКСПЛИКАЦИЯ ОБОРУДОВАНИЯ

1 -жилая комната

1. Кровать

2. Тумбочка

3. Стол круглый

4. Кресло жесткое

5. Телевизор

6. Место для инвалидной коляски

II - передняя

7. Встроенный шкаф

8. Зеркало

III - санитарный узел

9. Унитаз с поручнями

10. Раковина

Рис. П.5. Жилая ячейка на 2 места с жилой комнатой, передней и санитарным узлом.

ЭКСПЛИКАЦИЯ ОБОРУДОВАНИЯ

1 -жилая комната

II - передняя

1. Кровать

9. Холодильник

2. Тумбочка

10. Встроенный шкаф с зеркалом

3. Кресло жесткое

III - санитарный узел

4. Стул

11. Душ

5. Стол круглый

12. Унитаз с поручнями

6. Комбинированный шкаф

13. Раковина

7. Диван жесткий

14. Поворотное кресло

8. Телевизор с видеомагнитофоном

15. Место для инвалидной коляски

Рис. П.6. Жилая ячейка на 1 место в коммерческом отделении с передней и санитарным узлом.

ЭКСПЛИКАЦИЯ ОБОРУДОВАНИЯ

1 -жилая комната

III - передняя

1. Кровать

10. Шкаф-купе

2. Прикроватная тумбочка

11. Холодильник

3. Телевизор

IV - санитарный узел

4. Место для инвалидной коляски

12. Унитаз с поручнями

II - гостиная

13. Душ

5. Диван жесткий

14. Раковина

6. Шкаф комбинированный

7. Стул

8. Стал круглый

9. Телевизор с видеомагнитофоном

Рис. П.7. Жилая ячейка на 2 места в коммерческом отделении с передней и санитарным узлом

ЭКСПЛИКАЦИЯ ОБОРУДОВАНИЯ

1. Телевизор

2. Кресло жесткое

3. Диван жесткий

4. Место для инвалидной коляски

5. Стол

6. Стол круглый

7. Стеллаж с настольными играми, журналами и т.п.

8. Аквариум

9. Торшер

Рис. П.8. Помещение дневного пребывания.

ЭКСПЛИКАЦИЯ ОБОРУДОВАНИЯ

1-раздевальная

1. Стеллаж для чистого белья

2. Место передвижной ванны-каталки

3. Скамейка

4. Вешалка для белья

5. Место для инвалидной коляски

II - ванная комната

6. Передвижная ванна-каталка с гибким душем

7. Стационарная ванна

8. Подъемник для помещения больного в ванну

9. Поворотное кресло

10. Шкаф с моющими средствами

Рис. П.9. Ванная комната.

ЭКСПЛИКАЦИЯ ОБОРУДОВАНИЯ

1. Кресло гинекологическое

2. Столик инструментальный

3. Светильник однорефлекторный

4. Стул винтовой

5. Стол врача

6. Стул

7. Кушетка

8. Умывальник с вешалкой для полотенца

9. Бачок для мусора

10. Место для инвалидной коляски

11. Шкаф медицинский

12. Ширма

Рис. П.10. Кабинет гинеколога, уролога.

ЭКСПЛИКАЦИЯ ОБОРУДОВАНИЯ

1. Кресло стоматологическое

2. Столик инструментальный

3. Установка стоматологическая универсальная

4. Винтовой табурет

5. Плевательница

6. Светильник

7. Шкаф медицинский

8. Умывальник

9. Бачок для мусора

10. Стол врача

11. Стул

12. Место для инвалидной коляски

Рис. П.11. Кабинет стоматолога.

ЭКСПЛИКАЦИЯ ОБОРУДОВАНИЯ

1. Стол врача

2. Стул

3. Столик с набором линз для проверки остроты зрения

4. Офтальмологические установки

5. Табурет винтовой

6. Кушетка смотровая

7. Таблица

8. Шкаф медицинский

9. Умывальник

10. Бачок для мусора

11. Столик инструментальный

12. Светозащитная штора

13. Место для инвалидной коляски

Рис. П.12. Кабинет офтальмолога с темной комнатой.

ЭКСПЛИКАЦИЯ ОБОРУДОВАНИЯ

1. Стационарная ингаляционная установка

2. Винтовой табурет

3. Стол процедурной медсестры

4. Стул

5. Умывальник с вешалкой для полотенца

6. Бачок для мусора

7. Экран

8. Место для инвалидной коляски

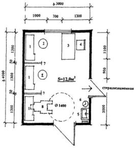
Рис. П.13. Ингаляторий на 3 места со стерилизационной.

ЭКСПЛИКАЦИЯ ОБОРУДОВАНИЯ

1. Кушетка

2. Столик с аппаратурой

3. Столик с аппаратурой для приема процедур сидя

4. Стул

5. Стол врача

6. Шкаф медицинский

7. Умывальник

8. Вешалка для полотенца

9. Место для инвалидной коляски

10. Ширма

Рис. П.14. Кабинет физиотерапии.

ЭКСПЛИКАЦИЯ ОБОРУДОВАНИЯ

1. Кушетка смотровая

2. Тумбочка прикроватная

3. Стол медсестры

4. Стул

5. Место для инвалидной коляски

6. Умывальник с вешалкой для полотенца

7. Ширма

Рис. П.15. Кабинет озокерита, парафинолечения и горячего укутывания с помещением подогрева.

ЭКСПЛИКАЦИЯ ОБОРУДОВАНИЯ

1. Аппарат для проведения электросна

2. Шкаф

3. Стол

4. Кровать для сна

5. Умывальник с вешалкой для полотенца

6. Стул

7. Стол специалиста

8. Место для инвалидной коляски

9. Ширма

Рис. П.16. Кабинет электросна.

ЭКСПЛИКАЦИЯ ОБОРУДОВАНИЯ

1 - душевая

1. Душевая сетка

2. Подвесное кресло

3. Место для инвалидной коляски

II - раздевальная

4. Скамейка

5. Место для инвалидкой коляски

III - санитарный узел

6. Унитаз с поручнями

7. Умывальник

8. Место для инвалидной коляски

Рис. П.17. Раздевальная с душевой при бассейне.

ЭКСПЛИКАЦИЯ ОБОРУДОВАНИЯ

1 - зрительный зал

II - сцена

1. Места для ходячих зрителей

3. Экран

2. Места размещения инвалидов-колясочников

4. Пандус

III- артистические

Рис. П.18. Актовый зал на 80 мест.

ЭКСПЛИКАЦИЯ ОБОРУДОВАНИЯ

1 - палата

1. Кровать

2. Тумбочка

3. Место для инвалидной коляски

4. Место для каталки

II - санитарный узел

5. Раковина

6. Унитаз

7. Место для инвалидной коляски

III - тамбур

Рис. П.19. Изоляционная палата на 2 места с санитарным узлом.



уроки по алготрейдингу на Python с нуля



Яндекс цитирования

   Copyright © 2008-2026 ,  www.infosait.ru

backtrader - уроки алготрейдинга на python