ИНФОСАЙТ.ру
Госты, стандарты, нормативы. В библиотеке 60000 документов. Регулярное обновление. Круглосуточный бесплатный доступ!
БИБЛИОТЕКА ГОСТОВ, СТАНДАРТОВ И НОРМАТИВОВ

:: АЛГОТРЕЙДИНГ ::


АЛГОТРЕЙДИНГ
шаг за шагом


БЕСПЛАТНЫЕ УРОКИ по созданию торговых роботов на PYTHON с нуля, шаг за шагом.


Минимальные знания на PYTHON.
Библиотеки BackTrader и Pandas, сигналы с Pine Script из TradingView.
Связка с брокерами, телеграм.
Создание простых интерфейсов.

 

Все документы, представленные в каталоге, не являются их официальным изданием и предназначены исключительно для ознакомительных целей. Электронные копии этих документов могут распространяться без всяких ограничений. Вы можете размещать информацию с этого сайта на любом другом сайте.


ГОСТ 18576-96

Контроль неразрушающий. Рельсы железнодорожные. Методы ультразвуковые

Обозначение стандарта:ГОСТ 18576-96
Статус стандарта:действующий
Название рус.:Контроль неразрушающий. Рельсы железнодорожные. Методы ультразвуковые
Название англ.:Nondestructive testing. Railway rails. Ultrasonic testing methods
Дата введения в действие:01.01.2002
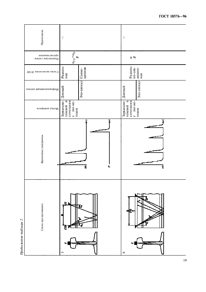
Область и условия применения:Настоящий стандарт распространяется на рельсы типа Р50 по ГОСТ 7174, Р65 по ГОСТ 8161 и Р75 по ГОСТ 16210 при их изготовлении, эксплуатации и ремонте (восстановлении) и устанавливает методы при ручном и механизированном ультразвуковом контроле для выявления в головке, шейке и зоне продолжения шейки в подошву рельсов внутренних дефектов (расслоений, флокенов, раковин, неметаллических и инородных включений, трещин, дефектов электроконтактной сварки) в пределах чувствительности контроля, а также зон аномальных механических напряжений в рельсах. Тип и реальные размеры дефектов не определяются.
Допускается распространять положения настоящего стандарта на контроль рельсов других типов.
Стандарт не устанавливает методы ультразвукового контроля наплавки
Взамен:ГОСТ 18576-85
c=&f2=3&f1=II001&l='>ОКС Общероссийский классификатор стандартов
  • c=&f2=3&f1=II001077&l='>77 МЕТАЛЛУРГИЯ
  • c=&f2=3&f1=II001077040&l='>77.040 Испытания металлов
  • c=&f2=3&f1=II001077040020&l='>77.040.20 Неразрушающие испытания металлов *Неразрушающие испытания в целом см. 19.100 *Неразрушающие испытания сварных соединений см. 25.160.40
  • c=&f2=3&f1=II002&l='>КГС Классификатор государственных стандартов
  • c=&f2=3&f1=II002003&l='>В Металлы и металлические изделия
  • c=&f2=3&f1=II002003000&l='>В0 Общие правила и нормы по металлургии
  • c=&f2=3&f1=II002003000009&l='>В09 Методы испытаний. Упаковка. Маркировка


  • ГОСТ 18576-96
    ГОСТ 18576-96
    ГОСТ 18576-96
    ГОСТ 18576-96
    ГОСТ 18576-96
    ГОСТ 18576-96
    ГОСТ 18576-96
    ГОСТ 18576-96
    ГОСТ 18576-96
    ГОСТ 18576-96
    ГОСТ 18576-96
    ГОСТ 18576-96
    ГОСТ 18576-96
    ГОСТ 18576-96
    ГОСТ 18576-96
    ГОСТ 18576-96
    ГОСТ 18576-96
    ГОСТ 18576-96
    ГОСТ 18576-96
    ГОСТ 18576-96
    ГОСТ 18576-96
    ГОСТ 18576-96
    ГОСТ 18576-96
    ГОСТ 18576-96
    ГОСТ 18576-96
    ГОСТ 18576-96
    ГОСТ 18576-96
    ГОСТ 18576-96
    ГОСТ 18576-96
    ГОСТ 18576-96
    ГОСТ 18576-96




    уроки по алготрейдингу на Python с нуля



    Яндекс цитирования

       Copyright © 2008-2026 ,  www.infosait.ru

    backtrader - уроки алготрейдинга на python