ИНФОСАЙТ.ру
Госты, стандарты, нормативы. В библиотеке 60000 документов. Регулярное обновление. Круглосуточный бесплатный доступ!
БИБЛИОТЕКА ГОСТОВ, СТАНДАРТОВ И НОРМАТИВОВ

:: АЛГОТРЕЙДИНГ ::


АЛГОТРЕЙДИНГ
шаг за шагом


БЕСПЛАТНЫЕ УРОКИ по созданию торговых роботов на PYTHON с нуля, шаг за шагом.


Минимальные знания на PYTHON.
Библиотеки BackTrader и Pandas, сигналы с Pine Script из TradingView.
Связка с брокерами, телеграм.
Создание простых интерфейсов.

 

Все документы, представленные в каталоге, не являются их официальным изданием и предназначены исключительно для ознакомительных целей. Электронные копии этих документов могут распространяться без всяких ограничений. Вы можете размещать информацию с этого сайта на любом другом сайте.


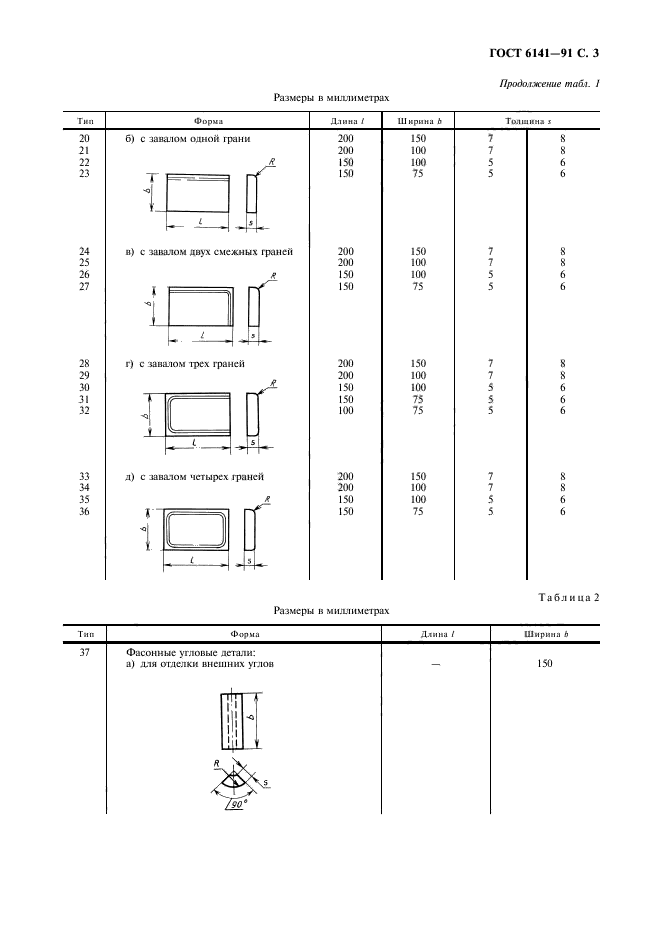
ГОСТ 6141-91

Плитки керамические глазурованные для внутренней облицовки стен. Технические условия

Обозначение стандарта:ГОСТ 6141-91
Статус стандарта:действующий
Название рус.:Плитки керамические глазурованные для внутренней облицовки стен. Технические условия
Название англ.:Glazed ceramic tiles for lining of the walls. Specifications
Дата введения в действие:01.07.1991
Область и условия применения:Настоящий стандарт распространяется на керамические глазурованные плитки и фасонные детали к ним.
Стандарт не распространяется на плитки, предназначенные для облицовки поверхностей, подверженных механическим воздействиям, влиянию мороза, высоких температур, грунтовых вод и агрессивных сред
Взамен:ГОСТ 6141-82
c=&f2=3&f1=II001&l='>ОКС Общероссийский классификатор стандартов
  • c=&f2=3&f1=II001091&l='>91 СТРОИТЕЛЬНЫЕ МАТЕРИАЛЫ И СТРОИТЕЛЬСТВО
  • c=&f2=3&f1=II001091100&l='>91.100 Строительные материалы *Продукция из чугуна и стали см. 77.140 *Продукция из цветных металлов см. 77.150 *Пиломатериалы см. 79.040 *Древесные плиты см. 79.060 *Стекло см. 81.040.20 *Пластмассовые изделия см. 83.140
  • c=&f2=3&f1=II001091100025&l='>91.100.25 Керамические изделия для строительства *Включая керамическую плитку, кровельную черепицу, кирпич и т. д.
  • c=&f2=3&f1=II002&l='>КГС Классификатор государственных стандартов
  • c=&f2=3&f1=II002007&l='>Ж Строительство и стройматериалы
  • c=&f2=3&f1=II002007001&l='>Ж1 Строительные материалы
  • c=&f2=3&f1=II002007001006&l='>Ж16 Отделочные и облицовочные материалы


  • ГОСТ 6141-91
    ГОСТ 6141-91
    ГОСТ 6141-91
    ГОСТ 6141-91
    ГОСТ 6141-91
    ГОСТ 6141-91
    ГОСТ 6141-91
    ГОСТ 6141-91
    ГОСТ 6141-91
    ГОСТ 6141-91
    ГОСТ 6141-91
    ГОСТ 6141-91
    ГОСТ 6141-91
    ГОСТ 6141-91




    уроки по алготрейдингу на Python с нуля

    Укладка керамической плитки на стены

    Яндекс цитирования

       Copyright © 2008-2026 ,  www.infosait.ru

    backtrader - уроки алготрейдинга на python