ИНФОСАЙТ.ру
Госты, стандарты, нормативы. В библиотеке 60000 документов. Регулярное обновление. Круглосуточный бесплатный доступ!
БИБЛИОТЕКА ГОСТОВ, СТАНДАРТОВ И НОРМАТИВОВ

:: АЛГОТРЕЙДИНГ ::


АЛГОТРЕЙДИНГ
шаг за шагом


БЕСПЛАТНЫЕ УРОКИ по созданию торговых роботов на PYTHON с нуля, шаг за шагом.


Минимальные знания на PYTHON.
Библиотеки BackTrader и Pandas, сигналы с Pine Script из TradingView.
Связка с брокерами, телеграм.
Создание простых интерфейсов.

 

Все документы, представленные в каталоге, не являются их официальным изданием и предназначены исключительно для ознакомительных целей. Электронные копии этих документов могут распространяться без всяких ограничений. Вы можете размещать информацию с этого сайта на любом другом сайте.


ГОСТ 14181-78

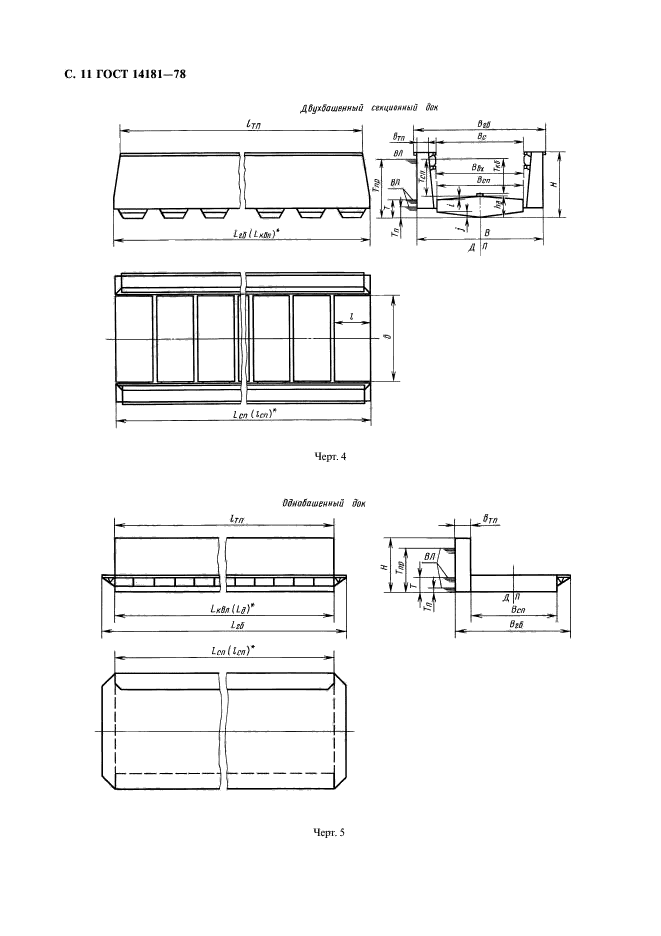
Доки плавучие. Термины, определения и буквенные обозначения главных и характерных размерений

Обозначение стандарта:ГОСТ 14181-78
Статус стандарта:действующий
Название рус.:Доки плавучие. Термины, определения и буквенные обозначения главных и характерных размерений
Название англ.:Floating docks. Terms, determinations and symbols of main and characteristic dimensions
Дата введения в действие:01.01.1980
Область и условия применения:Настоящий стандарт устанавливает термины, определения и буквенные обозначения главных и характерных размерений плавучих доков
Взамен:ГОСТ 14181-69
Список изменений:№1 от --1987-12-01 (рег. --1987-06-29) «Срок действия продлен»
c=&f2=3&f1=II001&l='>ОКС Общероссийский классификатор стандартов
  • c=&f2=3&f1=II001001&l='>01 ОБЩИЕ ПОЛОЖЕНИЯ. ТЕРМИНОЛОГИЯ. СТАНДАРТИЗАЦИЯ. ДОКУМЕНТАЦИЯ
  • c=&f2=3&f1=II001001040&l='>01.040 Словари *Стандарты,включенные в эту группу, следует также включать в другие группы и/или подгруппы в соответствии с их объектами
  • c=&f2=3&f1=II001001040047&l='>01.040.47 Судостроение и морские сооружения (Словари)
  • c=&f2=3&f1=II002&l='>КГС Классификатор государственных стандартов
  • c=&f2=3&f1=II002005&l='>Д Транспортные средства и тара
  • c=&f2=3&f1=II002005000&l='>Д0 Общие правила и нормы по транспорту и таре
  • c=&f2=3&f1=II002005000000&l='>Д00 Термины и обозначения


  • ГОСТ 14181-78
    ГОСТ 14181-78
    ГОСТ 14181-78
    ГОСТ 14181-78
    ГОСТ 14181-78
    ГОСТ 14181-78
    ГОСТ 14181-78
    ГОСТ 14181-78
    ГОСТ 14181-78
    ГОСТ 14181-78
    ГОСТ 14181-78
    ГОСТ 14181-78
    ГОСТ 14181-78
    ГОСТ 14181-78
    ГОСТ 14181-78
    ГОСТ 14181-78




    уроки по алготрейдингу на Python с нуля



    Яндекс цитирования

       Copyright © 2008-2026 ,  www.infosait.ru

    backtrader - уроки алготрейдинга на python