ИНФОСАЙТ.ру
Госты, стандарты, нормативы. В библиотеке 60000 документов. Регулярное обновление. Круглосуточный бесплатный доступ!
БИБЛИОТЕКА ГОСТОВ, СТАНДАРТОВ И НОРМАТИВОВ

:: АЛГОТРЕЙДИНГ ::


АЛГОТРЕЙДИНГ
шаг за шагом


БЕСПЛАТНЫЕ УРОКИ по созданию торговых роботов на PYTHON с нуля, шаг за шагом.


Минимальные знания на PYTHON.
Библиотеки BackTrader и Pandas, сигналы с Pine Script из TradingView.
Связка с брокерами, телеграм.
Создание простых интерфейсов.

 

Все документы, представленные в каталоге, не являются их официальным изданием и предназначены исключительно для ознакомительных целей. Электронные копии этих документов могут распространяться без всяких ограничений. Вы можете размещать информацию с этого сайта на любом другом сайте.


ГОСТ 13661-92

Совместимоть технических средств электромагнитная. Пассивные помехоподавляющие фильтры и элементы. Методы измерения вносимого затухания

Обозначение стандарта:ГОСТ 13661-92
Статус стандарта:действующий
Название рус.:Совместимоть технических средств электромагнитная. Пассивные помехоподавляющие фильтры и элементы. Методы измерения вносимого затухания
Название англ.:Electromagnetic compatibility of technical equipment. Passive filters and elements for interference suppression. Methods of inserted damping measuring
Дата введения в действие:01.01.1993
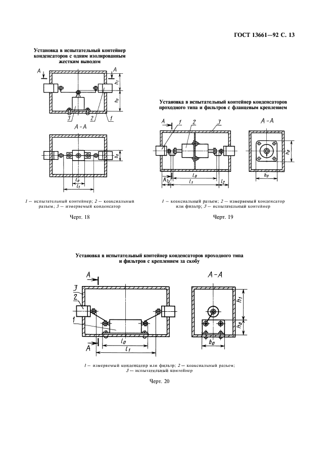
Область и условия применения:Настоящий стандарт распространяется на конденсаторы, дроссели, резисторы и пассивные фильтры, используемые для подавления электромагнитных помех, и устанавливает методы измерения вносимого ими затухания
Взамен:ГОСТ 13661-79
c=&f2=3&f1=II001&l='>ОКС Общероссийский классификатор стандартов
  • c=&f2=3&f1=II001033&l='>33 ТЕЛЕКОММУНИКАЦИИ.АУДИО-И ВИДЕОТЕХНИКА
  • c=&f2=3&f1=II001033100&l='>33.100 Электромагнитная совместимость(EMS) *Включая радиопомехи
  • c=&f2=3&f1=II002&l='>КГС Классификатор государственных стандартов
  • c=&f2=3&f1=II002019&l='>Э Электронная техника, радиоэлектроника и связь
  • c=&f2=3&f1=II002019002&l='>Э2 Элементы радиоэлектронной аппаратуры
  • c=&f2=3&f1=II002019002009&l='>Э29 Методы испытаний. Упаковка. Маркировка


  • ГОСТ 13661-92
    ГОСТ 13661-92
    ГОСТ 13661-92
    ГОСТ 13661-92
    ГОСТ 13661-92
    ГОСТ 13661-92
    ГОСТ 13661-92
    ГОСТ 13661-92
    ГОСТ 13661-92
    ГОСТ 13661-92
    ГОСТ 13661-92
    ГОСТ 13661-92
    ГОСТ 13661-92
    ГОСТ 13661-92
    ГОСТ 13661-92
    ГОСТ 13661-92
    ГОСТ 13661-92
    ГОСТ 13661-92
    ГОСТ 13661-92
    ГОСТ 13661-92
    ГОСТ 13661-92
    ГОСТ 13661-92
    ГОСТ 13661-92




    уроки по алготрейдингу на Python с нуля



    Яндекс цитирования

       Copyright © 2008-2026 ,  www.infosait.ru

    backtrader - уроки алготрейдинга на python